Первичная продажа



9 акций
С отделкой
Онлайн-бронирование
сдача ГК: 2 кв. 2027 года
Рассказовка
3 минуты на транспорте
23 640 889 ₽
356 037 ₽/м²
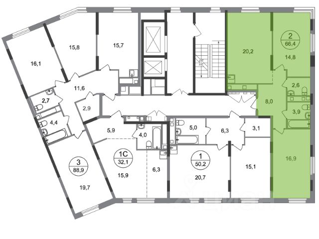
Продается двухкомнатная квартира с отделкой в 18 квартале города-парка "Переделкино Ближнее".
Общая площадь квартиры - 66,4 кв. м, этаж 12 из 17.
Срок сдачи - 2 квартал 2027 года.
Тип дома - монолитный.
ТОЛЬКО ДО 31 МАЯ выгодные условия на приобретение квартиры в ипотеку или рассрочку.
Звоните - и мы подберем оптимальное предложение под ваш запрос!
Корпус состоит из 12 секций c переменной этажностью 8-17 этажей.
Город-парк "Переделкино Ближнее" расположен в 8 км от МКАД по Боровскому шоссе.
ТРАНСПОРТНАЯ ДОСТУПНОСТЬ:
- 10 минут пешком до МЦД-4 "Мичуринец"
- 14 минут на машине до станции метро "Филатов Луг" Сокольнической линии
- 15 минут пешком до станции метро "Рассказовка" Солнцевской линии
- 30 минут до центра Москвы
- Прямой выезд на дорогу Солнцево-Бутово-Варшавское шоссе, минуя жилую застройку всего ЖК
РАЗВИТАЯ СОЦИАЛЬНАЯ ИНФРАСТРУКТУРА:
- 7 детских садов, 3 школы
- детская музыкальная школа имени Б.Л. Пастернака
- поликлиника для взрослых ГБУЗ ГП 212 ДЗМ филиал 70
- пожарная часть 66. Аварийно-спасательный отряд 6 ГКУ
- банки, продуктовые магазины, аптеки, фитнес центры, салоны красоты и пр
БЛАГОУСТРОЙСТВО:
- дворы без машин
- игровые зоны и развивающие детские площадки
- детские площадки разделены по возрастным группам
- зоны для пассивного отдыха
- зоны для занятий спорта
ОСОБЕННОСТИ АРХИТЕКТУРЫ:
- переменная этажность открывает видовые характеристики на реку Алешинка и на лесопарковую зону
- увеличенное остекление в квартирах
- высокие потолки от 3,03 м.
- безбарьерные входные группы
- колясочные в каждой входной группе
- кладовые помещения расположены на -1 этаже каждой секции и на 2-17 жилых этажах в секции 11
- коммерческие помещения на 1 этаже в 11 и 12 секциях
- в секциях 2-4, 6-7, 11-12 по 2 лифта: 1 пассажирский, 1 грузовой
- в секциях 1, 5, 8-10: 1 грузовой лифт
- мусоропроводы в домах не предусмотрены, запроектированы специальные зона для сбора мусора
- на фасаде предусмотрены корзины для установки кондиционеров.
- видеонаблюдение установленное в холлах первых этажей, у подъездов и прилегающей территории
АВТОРСКИЙ ДИЗАЙН:
Входные группы выполнены по авторскому дизайну, оснащены системой "тёплый пол". В каждой входной группе будет располагаться комфортабельная зона ожидания, почтовые ящики, колясочная, акцентные пуфы и столик. Продам 2-комнатную квартиру в новостройке с отделкой в поселении Внуковское в Москве.






























































































































