


302 734 ₽/м²
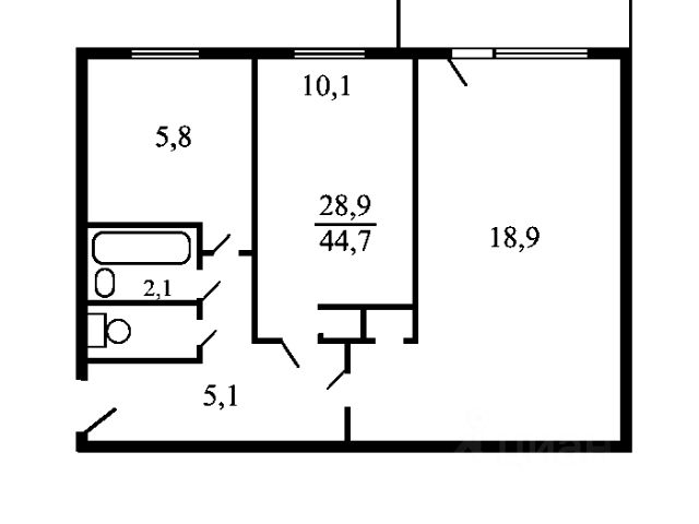
Продается уютная двухкомнатная квартира в районе Зябликово, всего в 12 минутах пешком от метро. Уютный спальный район с обилием парков и зелени. Общая площадь квартиры составляет 51 кв. м. Функциональная планировка, изолированные комната с выходом на балкон общей площадью 20 кв.м и спальня 12 кв.м, раздельный санузел, просторный холл, много мест для хранения.. Квартира удачно расположена на 15 этаже 17-этажного дома, окна выходят на уютный двор и лес, а закаты и восходы с высоты птичьего полета - потрясающе красивы ! Высота потолков — 2.7 метра, что добавляет ощущение простора. Дом в отличном состоянии, хорошие соседи. Богатейшая инфраструктура района: школы, детские сады и клиники — все необходимое для комфортной жизни семьи. В пешей доступности также расположены магазины и другие объекты инфраструктуры, что обеспечит вам удобство в повседневных делах. Возможна ипотека. Срочная продажа, возможен торг! Звоните и записывайтесь на просмотр, чтобы лично оценить все преимущества этой замечательной квартиры! 2-комнатная квартира вторичка в районе Орехово-Борисово Южное в Москве.





























































































