Первичная продажа
Только на Циан
Онлайн-бронирование
сдача ГК: 3 кв. 2026 года
Тютчевская
5 минут на транспорте
23 023 735 ₽
352 584 ₽/м²
Прямая продажа от застройщика!
Жилой Комплекс класса Комфорт Плюс.
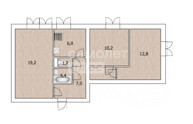
Продаётся 3-к квартира номер 808 общей площадью 65.3 кв.м. на 2-м этаже 5 этажного здания. Предчистовая отделка. Цена с учётом скидки.
Особенности квартиры:
- Квартиры рядом с метро - м. Корниловская 9 мин пешком
- 63 га лесопарка за окнами
- Школа c ИТ-кластером и бассейном. 2 детских сада
- Организуем показ в удобное для вас время!
- Просторная спальня, в которой можно разместить большую кровать.
- Распашная планировка - отличное сочетание удобства и свободы.
- Увеличенная ширина окна/окон - больше света и визуального простора.
- Увеличенное количество окон - дополнительное освещение и свежий воздух.
- Гостевой санузел - комфорт и удобство для ваших гостей.
- Евроформат - просторное и удобное жилье с отличной планировкой.
- Можно оборудовать 2 или более рабочих места - пространство для нескольких человек.
- Линейная кухня - функциональность и практичность в одном решении.
- Возможность добавить спальное место - дополнительный комфорт для гостей.
- Гардеробная - удобство для хранения и организации вещей.
- Лоджия - уютное место для отдыха и тишины.
Квартира с предчистовой отделкой. Вам не придется заниматься черновыми и трудоёмкими работы, а чистовую отделку и дизайн - сделайте на свой вкус.
Информация о комплексе:
ЖК "1-й Ясеневский": преимущества городской инфраструктуры и природы. Пешая доступность к метро, школе с бассейном и ИТ-кластеру, а также 63 га Троицкого лесопарка под окнами.
Закрытая территория с бульварами, велодорожками, кафе и дворами без машин. Фруктовые деревья и городские сады создают уникальную атмосферу. Всего в 1 км от МКАД - идеальный баланс для современной жизни.
Транспортная доступность:
До метро "Корниловская" - 12 минут пешком
До метро "Тютчевская" - 25 минут пешком
До метро "Теплый стан" - 10 минут на транспорте
До метро "Ольховая" - 30 минут на общественном транспорте
Личный автотранспорт:
Выезд на Калужское шоссе - 500 м
МКАД - 1 км
Внутренняя инфраструктура:
ЖК "1-й Ясеневский" - идеальное место для семей с детьми. Рядом Троицкий лесопарк для прогулок, а во дворах - современные детские площадки, разработанные с участием психологов. В шаговой доступности два детских сада и школа на 1100 мест с ИТ-кластером, бассейном и классами робототехники. Всё для счастливого детства и успешного будущего.
Квартира с предчистовой отделкой - ваш дизайн без черновых работ













































































