Первичная продажа
С отделкой
сдача ГК: 1 кв. 2029 года
Щёлковская
4 минуты на транспорте
31 745 000 ₽
350 000 ₽/м²
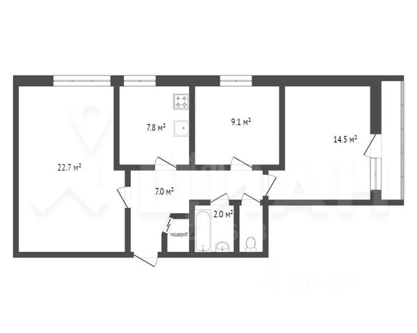
Продаётся 3-комн. квартира площадью 90,7 кв.м на 2 этаже 19 этажного дома (Корпус 4.4, Секция 4) проекта ПИК Амурский парк. Светлый просторный подъезд на уровне земли, функциональная планировка, большие окна, с отделкой.
"Амурский парк" — проект "Серии плюс" на востоке Москвы, в 10 минутах пешком от станций метро "Черкизовская" и МЦК "Локомотив". В квартале будет всё для комфортной жизни: квартиры с готовой отделкой и видом на Измайловский парк, уютные дизайнерские лобби, подземный паркинг, торговые галереи на первых этажах и свой детский сад с бассейном.
Всего в 8 минутах пешком от квартала "Амурский парк" находится уютный Сиреневый сад, а в 20 минутах — Детский Черкизовский Парк, за 10 минут можно доехать на машине до парка "Лосиный Остров".
Квартал от мастерской M.A.M. отражает уникальный архитектурный почерк и органично дополняет городской ландшафт. В основе концепции — принцип сомасштабности человеку, благодаря чему внутри проекта формируется комфортное и гармоничное пространство для жизни. Квартал представлен разновысотными корпусами в минималистичном стиле. Образ строится на сочетании мягких пластичных линий и строгих геометрических форм. Рельефные детали в виде вертикальных металлических ламелей добавляют зданиям объём и глубину, делая архитектуру более выразительной. Цветовая гамма фасадов построена на контрасте терракотового и молочно-серого оттенков, которые создают атмосферу тепла и уюта. Магазины, рестораны и полезные сервисы на первых этажах создадут комфортное пространство для покупок, прогулок и встреч за чашкой кофе. Артикуль 1020665 (АО "СПЕЦИАЛИЗИРОВАННЫЙ ЗАСТРОЙЩИК "ГЛОРИ"")






















































































