


420 795 ₽/м²
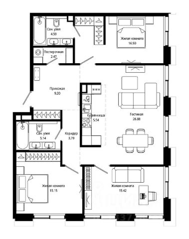
Продаётся 3-комнатная квартира 98.97 м² в жилом комплексе SOLOS (бизнескласс) рядом с парком Сокольники. Квартиру отличают панорамное остекление, потолки 3.2 м, улучшенная шумо и воздухоизоляция. Дом сдаётся в 4 квартале 2029 года, продажи проходят через эскроусчета. Подземный паркинг, коворкинг, закрытая благоустроенная территория с фонтаном и артобъектами. Гибкие условия покупки. Ключевые преимущества: — Расположение в одном из самых популярных районов старой Москвы, рядом с одним из крупнейших парков столицы — "Сокольники". — До парка 2 минуты пешком. — Удобный выезд на Третье транспортное кольцо. — Метро "Сокольники" в пешей доступности. Архитектура и проект: Solos — две башни бизнескласса, спроектированные архитектурным бюро Kleinewelt Architekten. Прозрачная, лаконичная архитектура с панорамным остеклением открывает виды на парк и центр города. Высота потолков — 3,2 метра, большие окна в пол. В квартирах предусмотрены инженерные решения для акустического комфорта и чистый воздух благодаря близости парка и современным системам вентиляции. Территория: Закрытый двор с благоустройством в созерцательном стиле: фонтан, артобъекты, зоны тихого отдыха, детские и спортивные площадки. Приватность и безопасность обеспечены современными системами доступа и видеонаблюдения. Инфраструктура: — Подземный паркинг; — Коворкинг для резидентов; — Рестораны и кофейни на первых этажах; — Зоны отдыха и озеленения. Гарантии и надёжность: Застройщик — молодая команда с опытом реализации проектов в сегменте бизнескласса. Все продажи ведутся через эскроусчета: ваши средства остаются на счетах в банке и не могут быть использованы до сдачи дома. Условия покупки: — Ипотека от ведущих банков (программы с господдержкой); — Возможна рассрочка на этапе строительства; — Инвестиционные пакеты для сдачи квартир в аренду. Запишитесь на консультацию и выберите свою квартиру уже сегодня. Мы поможем рассчитать ипотеку, подберём планировку и проведём виртуальный или живой тур по шоуруму. Здесь, среди деревьев и новой архитектуры, остаётся пространство для искренности, созидательности и чувствительности (sense-centric). Продам 3-комнатную квартиру рядом с метро Рижская.





































































































































