792 317 ₽/м²
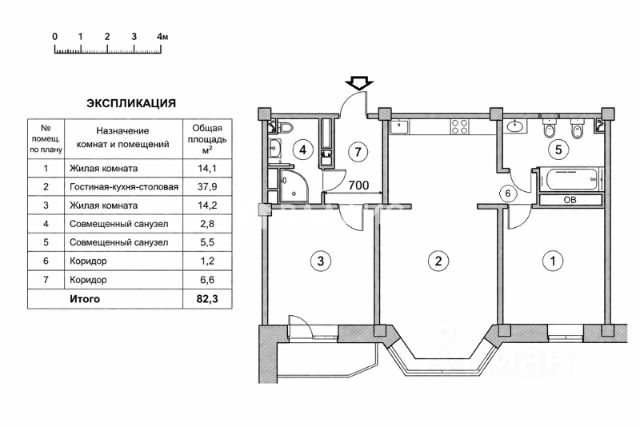
Код объекта: 2131486. Продаётся просторная 3-комнатная квартира в одном из самых комфортных и статусных районов центра Москвы - в Пресненском районе. Квартира: Квартира общей площадью 83,3 м² расположена на 9 этаже 13-этажного монолитно-кирпичного дома индивидуального проекта 1997 года постройки. Планировка удобная и функциональная: 2 изолированные комнаты, просторная кухня-гостиная, два санузла, окна выходят во двор, благодаря чему в квартире тихо и спокойно, что особенно ценно для жизни в центре Москвы. Квартира в отличном состоянии. В отделке использованы качественные и долговечные материалы: на полу паркет и мраморная плитка, на стенах декоративная штукатурка, в санузлах - тёплые полы. Пространство выглядит аккуратно, уютно и ухоженно. Установлены кондиционеры, предусмотрено большое количество мест для хранения. Дом: Дом добротный, монолитно-кирпичный, с железобетонными перекрытиями, просторной входной группой, консьержем, круглосуточной охраной и видеонаблюдением. В доме есть пассажирский и грузовой лифты, мусоропровод, въезд на придомовую территорию организован через шлагбаум. Для жителей предусмотрена наземная парковка, а рядом с домом расположен подземный паркинг, что является серьёзным преимуществом для центра города. Территория закрыта от случайного транзита, поэтому здесь комфортно и безопасно. Инфраструктура: Локация - одно из главных достоинств квартиры. Дом расположен в Пресненском районе ЦАО, в пешей доступности сразу от нескольких станций метро: "Баррикадная", "Краснопресненская" и "Маяковская". Дорога до метро занимает примерно 10-15 минут пешком. Удобный и быстрый выезд на Садовое кольцо позволяет легко добраться в любую часть города. Инфраструктура района отлично развита и подходит как для собственного проживания, так и для семейного формата жизни. Рядом находятся школы, детские сады, магазины, банки, фитнес-клубы, кафе, рестораны и все необходимые городские сервисы. В пешей доступности расположена школа 1950 на Зоологической улице. Также рядом находится Московский зоопарк - одна из самых узнаваемых и приятных локаций района, которая делает окружение более зелёным, живым и комфортным для прогулок. Эта квартира подойдёт тем, кто ищет просторное жильё в центре Москвы, в качественном доме, с тихим двором, хорошей отделкой и удобной транспортной доступностью, при этом рядом со всей инфраструктурой и ключевыми точками Пресни. Свободная продажа, один взрослый собственник, без обременений, документы основания - ДКП 2002 года. 3-комнатной квартиры с евроремонтом на улице Зоологическая в Москве.










































































