


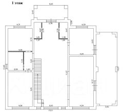
Арт. 117118660 Современный дом с панорамным остеклением и вторым светом, с отделкой White Box. По желанию покупателя возможно закончить ремонт "ПОД КЛЮЧ" ! Дом расположен в жилом строго-охраняемом коттеджном поселке со всеми центральными коммуникациями, в живописном экологически чистом районе в окружении Реликтового лесного массива. Конструктив фундамент свайно-ростверковый, утепленная монолитная плита, перекрытия - монолитная плита с утеплением, стены керамический кирпич с утеплением 10 см., кровля фальцевая. Внешняя облицовка дома выполнена в современном стиле облицовочным кирпичом "BRAER". Внутренняя облицовка стен подготовлена под окраску. Планировка В доме реализована современная планировка, высокие потолки, второй свет, панорамные окна из которых открывается прекрасный вид. На первом этаже большая кухня/гостиная с выходом на веранду. Первый этаж: прихожая, раздельные гардеробные, кухня-гостиная, столовая с выходом на веранду, просторный холл со вторым светом высота потока более 5 метров, две спальни, санузел, котельная имеет отдельный вход. Второй этаж: две мастер спальни с гардеробной и санузлом, кабинет Коммуникации Все коммуникации заведены в дом: электричество- 15 кВт, канализация- центральная, водоснабжение- центральное. Магистральный газ по границе участка, поселок газифицирован, возможно подключение. Участок Участок 13 соток, дренажированный, правильной формы, по периметру огорожен забором на бетоном основании, установлены автоматические ворота. Отмостка, двор перед домом и парковка, залиты бетонном с утеплением. Инфраструктура В поселке собственная служба эксплуатации и охраны. В 5 км в поселке Яковлевское вся необходимая инфраструктура: школы, детские сады, взрослая и детская поликлиники, магазины, бытовые службы, колхозный рынок, банк, полиция. Транспорт От КПП поселка специализированный, школьный автобус отвозит детей на занятия и обратно. Удобная транспортная доступность до Москвы: каждые 20 минут отъезжают автобусы до м. Саларьево, маршрутное такси и автобусы до железнодорожной станции Рассудово, далее 45 минут на электричке до Киевского вокзала. Звоните! Прописка Москва! В доме ни кто не прописан, один взрослый собственник, документы готовы к сделке. Наша компания организует всё необходимое для проведения сделки, в том числе поможем с одобрением ипотеки. Обязательное присутствие юриста на каждом этапе. Все сделки застрахованы. ЗВОНИТЕ!













































































