194 118 ₽/м²
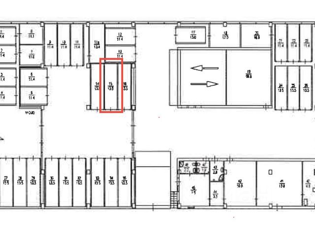
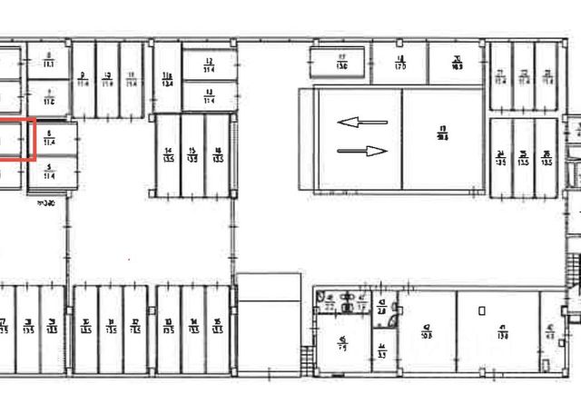
Продаю бокс- машиноместо за воротами, в крытом гаражном комплексе гск Рубцовский. До центра 15 мин по Яузе. ТТК в 3 мин. Метро БКЛ Электрозаводская 10 мин пешком. 4 этаж Размеры бокса: площадь — 17,1 м², длина — 6,0 м, ширина — 2,9 м, высота — 2,2 м. Отопление, туалет, свет, охрана и видеонаблюдение 24ч. Теплый, тк не первые этажи. Коммунальные платежи 3900р в квартал. Адекватное правление. В собственности более 3х лет, без обременений. Торг. Для поиска: гараж, машиноместо, парковка, паркинг, крытый гараж, гск, гаражный бокс, резиденции архитекторов, гараж в центре. Продается гараж в районе Басманный в Москве.


















































































