


383 119 ₽/м²
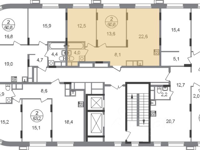
Дом сдан! Продается двухкомнатная квартира в девятиэтажном монолитном доме жилого комплекса "Резиденции Сколково". Общая площадь квартиры - 77,6 кв. м, этаж 5 из 9. Срок сдачи - 3 квартал 2024 года. Резиденция имеет отапливаемый подземный паркинг на 286 мест с доступом без выхода на улицу. ТОЛЬКО ДО 31 МАРТА выгодные условия на приобретение квартиры в ипотеку или рассрочку. Звоните - и мы подберем оптимальное предложение под ваш запрос! ЖК "Резиденции Сколково" - это современный проект бизнес-класса, расположенный в престижном районе Сколково, у западной границы Москвы. Транспортная доступность: - 0 км от МКАД - 10 минут на личном авто до метро "Озёрная" Солнцевской линии - 15 минут на личном авто до Москва-Сити по Кутузовскому проспекту - 20 минут на личном авто до центра по проспекту Генерала Дорохова - 24 минут на личном авто до центра по Мичуринскому проспекту - Проспект Багратиона - бессветофорная дорога Благоустройство и инфраструктура: Масштабное озеленение в концепции "двора-парка" и множество площадок отдыха для взрослых и детей. В 5 минутах ходьбы расположен Мещерский лесопарк. В жилом комплексе уже построены и работают 2 муниципальных детских сада с бассейном, планируется строительство 1 школы. В непосредственной близости - частные и муниципальные детские сады и школы, кафе и рестораны, продуктовые магазины, салоны красоты и другие готовые объекты городской инфраструктуры. Безопасность: Огороженная, закрытая территория, круглосуточное видеонаблюдение, контроль доступа во внутренний двор. Авторская архитектура: Авторская концепция архитектуры: панорамное остекление, французские балконы, стильные просторные лобби. Входные группы на уровне земли. Для удобства жителей на первых этажах предусмотрены помещения для колясок и велосипедов.

























































































