290 000 ₽/м²
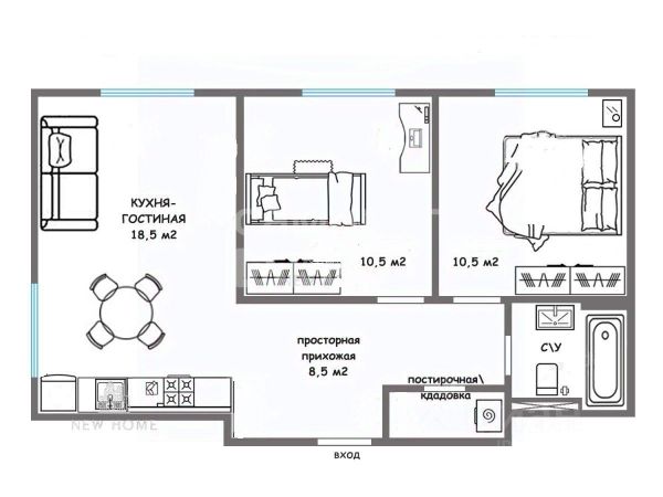
В ЖК "Легенда Марусино" продаётся 3 -к квартира 82.3 кв. м, расположенная на 4 -м этаже 4 -этажного дома. Квартира продаётся напрямую от Застройщика. Жилой комплекс "Легенда Марусино" расположен в тихом районе Люберецкого городского округа, деревне Марусино, окружённой частным сектором, рекой и лесом. Жилой комплекс находится в 15 минутах пешком до Зенинского парка, в 10 минутах на авто до метро Некрасовка, 15 минут на авто до МЦД-3 Люберцы, 15 минут на авто до МКАД. ЖК "Легенда Марусино" будет построен в 4 квартале 2026 года. Первые этажи жилого комплекса "Легенда Марусино" займут кафе, магазины, аптеки. В шаговой доступности расположены детские сады, школы, учреждения дополнительного образования, спортивный зал с бассейном, магазины и медицинский центр. Жилой комплекс комфорт-класса "Легенда Марусино" состоит из 2-х жилых корпусов, во дворах будут построены детские и спортивные площадки, а по периметру будет пролегать велосипедная дорожка. На первых этажах жилых корпусов располагаются магазины, кафе и салон красоты, что позволит жителям наслаждаться комфортом и удобством в одном месте. В жилом комплексе будет реализована концепция безбарьерной среды - входные группы на уровне земли удобны для всех, включая маломобильные группы. Панорамное остекление наполняет подъезды светом, а стеклянные двери дают видимость наружу. В подъездах предусмотрены зоны для хранения колясок и велосипедов, комната охраны. Дворы будут закрыты от автомобилей и посторонних лиц, создавая атмосферу уюта и безопасности для жильцов. На подземной парковке будут установлены скоростные зарядные станции для электромобилей, что позволит водителям использовать экологичный транспорт, не покидая двора собственного дома. В ЖК "Легенда Марусино" будут созданы все необходимые условия для комфортой жизни и отдыха. Современный жилой комплекс "Легенда Марусино" обеспечивает не только комфортное проживание, но и экологичное место для жизни. ЖК "Легенда Марусино" станет идеальным местом для тех, кто ценит уют и удобство загородной жизни, но также желает пользоваться преимуществами городской жизни. Чтобы узнать подробности и купить квартиру в ЖК "Легенда Марусино" - напишите нам или позвоните по телефону.



















































































