


347 768 ₽/м²
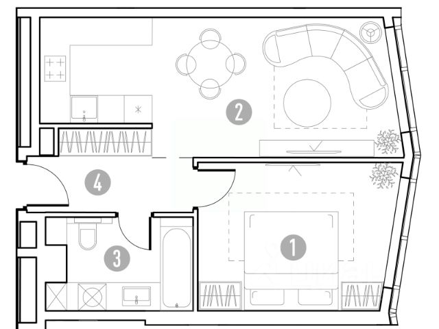
Продается трехкомнатная квартира без отделки в девятиэтажном монолитном доме жилого комплекса "Резиденции Сколково". Общая площадь квартиры - 91,7 кв. м, этаж 9 из 9. Срок сдачи - 2 квартал 2027 года. ТОЛЬКО ДО 31 МАЯ выгодные условия на приобретение квартиры в ипотеку или рассрочку. Звоните - и мы подберем оптимальное предложение под ваш запрос! Резиденция 2.2 состоит из 6 секций: - 5 секция с предчистовой отделкой с возможностью повышения до дизайнерской за дополнительную плату - Остальные секции - без отделки ЖК "Резиденции Сколково" - это современный проект бизнес-класса, расположенный в престижном районе Сколково, у западной границы Москвы. ТРАНСПОРТНАЯ ДОСТУПНОСТЬ: - 0 км от МКАД - 10 минут на личном авто до метро "Озёрная" Солнцевской линии - 15 минут на личном авто до Москва-Сити по Кутузовскому проспекту - 20 минут на личном авто до центра по проспекту Генерала Дорохова - 24 минут на личном авто до центра по Мичуринскому проспекту ОСОБЕННОСТИ РЕЗИДЕНЦИИ 2.2: - панорамное остекление - французские балконы - сквозные входные группы с безбарьерным входом - стильная мягкая зона ожидания - колясочные во входных группах на 1 этажах - входная группа 1 этажа каждой секции оснащена санузлом - паркинг на -1 этажах - по 2 лифта: 1 пассажирский, 1 грузопассажирский ПРИВАТНОСТЬ: Огороженная, закрытая территория, круглосуточное видеонаблюдение, контроль доступа во внутренний двор. БЛАГОУСТРОЙСТВО И ИНФРАСТРУКТУРА: Масштабное озеленение в концепции "двора-парка" и множество площадок отдыха для взрослых и детей. В 5 минутах ходьбы расположен Мещерский лесопарк. В жилом комплексе уже построены и работают 2 муниципальных детских сада с бассейном, школа на этапе строительства. В непосредственной близости - частные и муниципальные детские сады и школы, кафе и рестораны, продуктовые магазины, салоны красоты и другие готовые объекты городской инфраструктуры. *В 3D туре представлена отделка "Фрунзуская классика. Business Plus"

























































































































