528 736 ₽/м²
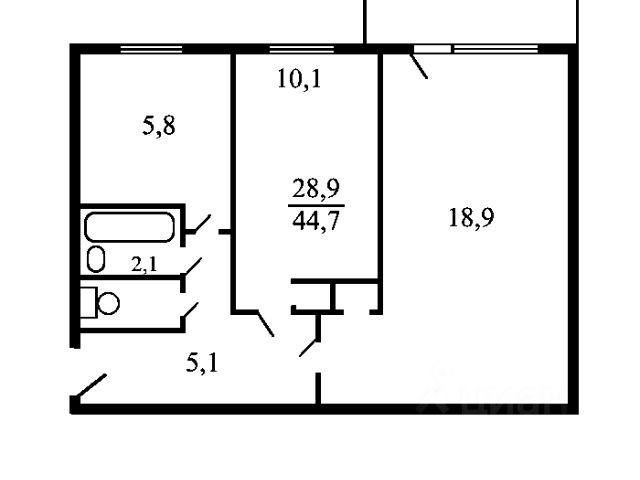
Код объекта: 2153709. 2комнатная квартира в районе Филёвский парк — инвестиция с перспективой! Продаётся светлая и уютная двухкомнатная квартира с отличным ремонтом — идеальный вариант для жизни или инвестиций! Основные преимущества: Расположена на 1м этаже 5этажного дома (1964 год постройки) — удобно для семей с детьми, пожилых людей и без лифта. Дом участвует в программе реновации (2я волна, планируемое переселение — 20252028 годы). Получите современную квартиру большей площади в новом доме без дополнительных вложений! Отличный ремонт — заезжайте и живите без дополнительных затрат. На кухне установлена посудомоечная машина — экономия вашего времени и сил. Развитая инфраструктура района: всё необходимое рядом. Отличная транспортная доступность — три станции метро в пешей доступности. Почему это выгодное предложение? Инвестиционная привлекательность. Стоимость жилья в домах под реновацию растёт по мере приближения сроков переселения. Возможность сдачи в аренду. Спрос на квартиры в этом районе высокий — легко найти надёжных арендаторов. Комфорт здесь и сейчас. Качественный ремонт позволяет сразу заселиться или сдать квартиру без дополнительных вложений. Перспектива переезда в современный дом с улучшенной планировкой и отделкой. Район — мечта для комфортной жизни: Зелёные зоны для прогулок. Школы, детские сады, поликлиники, Университет юстиции. Магазины, супермаркеты, торговые центры. Спортивные и детские площадки. Не упустите шанс приобрести квартиру с двойным преимуществом: комфортное жильё сегодня и перспективная инвестиция в будущее! Звоните прямо сейчас, чтобы договориться о просмотре! Мы гарантируем безопасную сделку и юридическую поддержку нашим клиентам. Продается квартира в доме под снос на улице 3-я Филевская в Москве.















































































