


610 973 ₽/м²
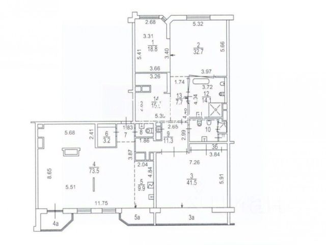
Тот самый двухуровневый пентхаус с собственной террасой в комплексе премиум-класса "Долина Сетунь" с живописными видами на весь город: панорама на Мосфильмовский пруд, Поклонную гору, все сталинские высотки, башни "Москва-Сити". Пентхаус общей площадью 401 м² расположен на 35-36-м этаже, высота потолков каждого уровня 4 метра. Свободная планировка позволяет организовать пространство по собственному усмотрению. Возможно организовать от 5 до 7 спален. Благодаря широкоформатному остеклению пространство наполнено светом, из окон открывается вид на всю Москву. Высота потолков на террасе 12 метров. Есть возможность установки камина. Машиноместа в подземном паркинге возможно приобрести отдельно. Оперативный показ , полное юридическое сопровождение сделки для покупателя. Комментарий эксперта. Меня зовут Алиса Мяктинова — брокер компании Whitewill. Я отвечаю за продажу этого лота. Свяжитесь со мной, чтобы получить расширенную презентацию, больше фотографий или договориться о просмотре. Могу провести экскурсию по локации и познакомить вас с этим домом. ID 261 228.










































































