Первичная продажа



Ипотека 11,9% на весь срок
ещё 9 акций
сдача ГК: 3 кв. 2028 года
Аминьевская
5 минут на транспорте
74 866 725 ₽
471 750 ₽/м²
Прямая продажа от застройщика.
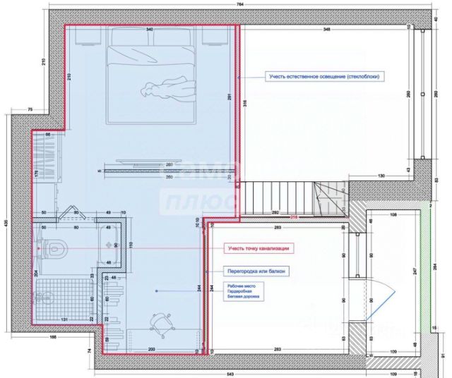
Продаётся 5-комнатная квартира общей площадью 158.70 м² без отделки в ЖК Веер на 2-м этаже 59 этажного дома.
ВЕЕР — это жилой квартал бизнес-класса в престижном ЗАО Москвы всего 5 минут до Кутузовского проспекта. 15 минут — до центра столицы, Переделкино или Сколково. Рядом — крупнейший природный заказник "Долина реки Сетунь", а в пешей доступности — новая проектируемая станция метро. Здесь всё необходимое для жизни находится в шаговой доступности: например, офисный и спортивный кластеры, государственная рейтинговая школа 1329 и детский сад, фитнес и ресторанный бульвар.
• Концепция 15-минутного города
ВЕЕР реализует идею "города в городе": внутри квартала появятся офисный и спортивный кластеры, своя государственная рейтинговая школа 1329 и детский сад, центры творчества, ресторанный бульвар, фитнес и спа-центр с 25-метровым бассейном. Здесь будет всё — от салонов красоты и банков до медицинских центров и фуд-холла. Для активного отдыха — 25-километровый беговой маршрут, школа единоборств и йога-студия прямо в комплексе.
• Архитектура и планировки
Первая очередь ВЕЕР.1 — это 5 разновысотных башен, объединённых стилобатом с благоустроенным закрытым двором без машин. Авторская архитектура от бюро СПИЧ, известного по таким знаковым проектам как новое здание Третьяковской галереи в Москве и Музей архитектурного рисунка в Берлине, создаёт динамичный силуэт квартала. Более 200 типов продуманных планировок: квартиры с видовыми террасами, мастер-спальнями, панорамными окнами и даже смотровой площадкой на крыше. Малоэтажные уютные секции с 25 квартирами на этаже и с эксплуатируемой кровлей подойдут тем, кто ищет уединения. Предчистовая отделка white box по стандартам MR обеспечивает быстрое заселение и тишину в корпусах.
• Элегантные лобби и зеленые дворы
В каждом лобби — дизайнерская отделка от Jaime Beriestain Studio, премиальные материалы, уютные зоны для общения, коворкинги, студии йоги, лапомойки и просторные колясочные. В закрытых дворах царит гармония природы и жизни: всесезонный чайный домик, кленовая роща, площадь с прудом и беседкой, амфитеатром и библиотекой. Для детей — образовательные игровые площадки "Археология" и "Ботаника".
• Спорт и досуг
Трёхуровневый фитнес и СПА-центр на 4000 кв.м с 25-метровым бассейном под прозрачной крышей, кардио- и силовыми залами, а также пространством для групповых занятий — всё это прямо в доме.
• Инженерия и безопасность
ВЕЕР оснащён умной инженерией: скоростные лифты премиум-класса Sword, современная система вентиляции, двухуровневый паркинг на 695 машино-мест с прямым доступом из лобби, зарядками для электромобилей, кладовыми и велопарковками. Отдельный вход для курьеров и современные системы охраны обеспечивают абсолютную безопасность жителей.












































































































































