Арт. 87524383 Продается 2-х этажный каркасный дом на участке 10.8 соток для круглогодичного проживания, расположенный в КП Кутузовские Холмы в шаговой доступности от реликтового леса. Строился для себя. Строительство завершено в 2021 году. Всё, что на фото, останется будущему владельцу дома, поэтому можно будет сразу заехать в дом и жить!
Дом построен по индивидуальному архитектурному проекту.
КОНСТРУКТИВ: фундамент металлические сваи 4.5 м с гидроизоляцией. Перекрытия цоколя по деревянным балкам с утеплением 4 слоя. Наружные стены каркасные с утеплением 6 слоев, перегородки каркасные с заполнением утепления 2 слоя. Кровля скатная из металлочерепицы по деревянным несущим конструкциям с утеплением 4 слоя, с гидроизоляцией. Окна 5-ти камерный профиль 3 стекла, пластиковый стеклопакет Rehau.
КОММУНИКАЦИИ: Отопление: электрическое, выделенное электричество 15 кВт (3 фазы). Водоснабжение артезианская скважина 88 м. Канализация септик с многоступенчатой биологической очисткой Biodeka. Котел и бойлер (отопление вопа) апектпические Магистральный газ по границе участка.
Интернет и ТВ: в поселке есть свой провайдер;
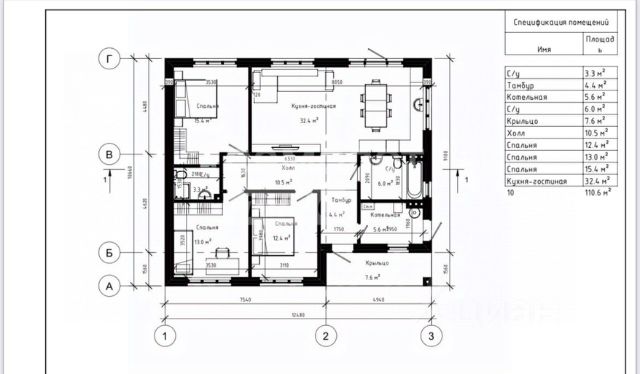
ПЛАНИРОВКА: На 1-ом этаже расположены: прихожая; санузел, оснащенный электрическим котлом Protherm, сантехникой и стиральной машиной; холл, кухня-столовая с встроенными кухонным гарнитуром и бытовой техникой (варочной панелью, духовым шкафом, микроволновой печью, вытяжкой, холодильником), большая гостиная комната с выходом на меблированную веранду, спальня, санузел с ванной, маленькая кладовая и удобная лестница на 2-ой этаж; На 2-ом этаже расположены: хозяйская спальня с выходом на балкон, с собственным санузлом с ванной, оснащенным водонагревателем Electrolux Royal Flash, детская спальня, спальня с выходом на балкон, гардеробная, санузел, оснащенный водонагревателем Ariston.
УЧАСТОК: Ровной формы, огорожен, автоматические ворота на въезд, оснащен водоотводами, вымощены плиткой парковочные зоны, дорожки.
БЛАГОУСТРОЕННАЯ ПРИДОМОВАЯ
ТЕРРИТОРИЯ: Ухоженный земельный участок. Завезен плодородный слой земли.
На территории имеется хозблок, 2 большие теплицы 3х6 м, крытая веранда, укомплектованная мебелью из искусственного ротанга, парковка на 6 а/м.
ИНФРАСТРУКТУРА: в 5-ти мин. ходьбы расположен лес, берег Москвы-реки. В 15-ти мин. езды от дома расположены горнолыжный курорт Гая Северина, конноспортивные школы, частная
"Ломоносовская" школа и другие социально-значимые объекты. Школы и детские сады в пос. им. Тельмана, сетевые магазины "Верный", "Мираторг",
"Пятерочка", "Красное и белое" и т.д.
Соседи частично построились, многие живут круглогодично, въездная группа в поселке облагорожена, въезд осуществляется через шлагбаум.
ТРАНСПОРТНАЯ ДОСТУПНОСТЬ: остановка общественного транспорта находится в 7-ми мин. ходьбы от поселка. Удобный выезд на Новорязанское и Каширское шоссе. Круглогодичный подъезд.
Дом полностью меблирован и оснащен бытовой техникой. Один взрослый собственник, обременений нет. Документы в сборе, в том числе архитектурный проект дома.
Не упустите возможность стать владельцем этого замечательного дома! Мы готовы ответить на все ваши вопросы и организовать просмотр. Звоните прямо сейчас!