От года, комм. платежи включены (без счётчиков), без комиссии, залог 150 000 ₽
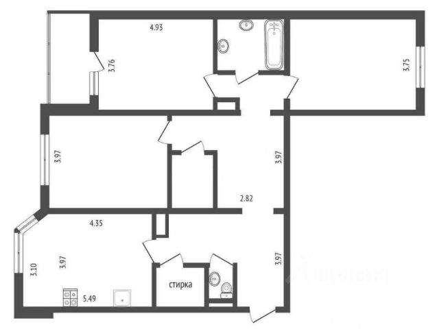
Сдается просторная евротрешка (потолки 3 м), квартира с дизайнерским ремонтом в современном жилом комплексе Грин Парк построенном в 2019 в пешем доступе от метро Ботанический сад и Отрадное. Квартира после клининга. Готова к заселению. Дом оснащен двумя грузовыми и одним пассажирским лифтами, что делает переезд и повседневные поездки особенно удобными. Для вашего автомобиля предусмотрена подземная парковка, поэтому вы всегда найдете место для своей машины. Квартира сдается без посредников, что позволяет избежать дополнительных комиссий. Функциональная планировка: большая кухня- гостиная, 2 изолированные комнаты (спальня и детская), 2 санузла (один из которых с полноценной ванной), вместительная гардеробная, прихожая. Большие окна выходят на улицу и обеспечивают максимум света в любое время года. В квартире выполнен качественный ремонт, дорогая мебель и вся необходимая техника (встроенный холодильник, электрическая плита, духовой шкаф, микроволновая печь, стиральная и посудомоечная машины). В спальне кровать King size, в детской - две кровати, кухня-гостиная с современным кухонным гарнитуром, обустроенной обеденной зоной и зоной отдыха, полноценная гардеробная с продуманной системой хранения - все это позволит максимально комфортно разместиться семье с детьми. Соседи спокойные, интеллигентные. Подъезд чистый, без посторонних запахов, 4 квартиры на этаже. Ухоженная закрытая придомовая территория, без машин. Благоустроенный озеленённый двор с детскими и спортивными площадками, фонтаном. Район тихий, семейный. Развитая инфраструктура, все в шаговой доступности: - школы (в том числе английская - во дворе дома) и детские сады (в том числе английский детский сад - виден из окон), школы искусств и танцев, спортивные секции и многое другое, детский и взрослый бассейн; - колледжи и ВУЗы: - детская и взрослая поликлиники, медицинские центры, лаборатории, стоматология; - торговые центры и магазины на любой вкус и кошелек; - кафе, рестораны, пиццерии, пекарни, кофейни; - МФЦ, нотариус, отделения банков, аптеки, фитнес-центры, салоны красоты, барбершопы, СПА, химчистки, магазины цветочные магазины и многое другое; - ПВЗ Вайлбериз, Яндекс.Маркет, Ozon, Сдэк, почта; - для прогулок в непосредственной близости располагаются Главный ботанический сад РАН, парк Свибловские пруды, Хуамин и Сад будущего. Удобная транспортная доступность! - пеший доступ к метро Отрадное метро и станции МКЦ "Ботанический сад"; - легкий выезд на СВХ МСД, проспект Мира и Алтуфьевское шоссе. Общая площадь составляет 60 кв. м, жилая площадь — 45 кв. м, кухня — 10 кв. м. Квартира расположена на 2 этаже 20-этажного дома. Высокие потолки в 3 метра создают ощущение простора и света. Звоните и записывайтесь на просмотр, чтобы лично оценить все преимущества этой квартиры.



















































































