259 628 ₽/м²
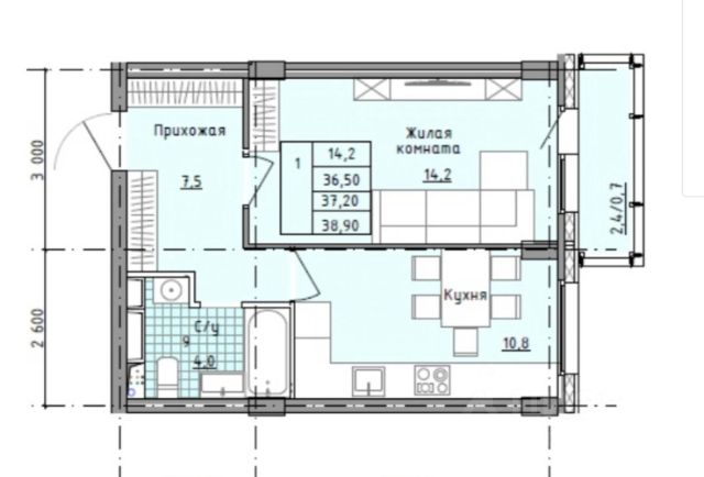
Продаётся 1-комн. квартира площадью 37,1 кв.м на 12 этаже 12 этажного дома (Корпус 5.1, Секция 1) проекта ПИК Зелёный парк. Светлый просторный подъезд на уровне земли, функциональная планировка, большие окна, предчистовая отделка. Большой квартал с оригинальной архитектурой в обжитом районе Зеленограда. От него до станции МЦД-3 "Зеленоград-Крюково" — 20 минут пешком, до Кутузовского шоссе можно доехать на машине за 3 минуты, а до Пятницкого шоссе — за 5 минут. Характер "Зелёного парка" отражён в архитектуре. Квартал состоит из уютных разноэтажных блоков с оригинальными акцентами. Цветовая палитра проекта спокойная и сдержанная: оттенки белого и коричневого сочетаются с пастельным розовым и мятным. В проекте запланированы также два детских сада, две школы и паркинг. На первых этажах откроются магазины, кафе и другие сервисы — чтобы купить кофе и свежий хлеб к завтраку, можно будет просто спуститься на лифте. В уютных дворах-парках появятся места для отдыха, детские площадки, кофейни и зоны отдыха. Рядом — Зеленоградский лес, Парк Победы и Михайловский пруд, где можно гулять и заниматься спортом. У жителей "Зелёного парка" будет возможность получить московскую прописку. Для любителей спорта в 10 минутах пешком от квартала — велодром с трассой, физкультурно-оздоровительный комплекс Горизонт, а также лыжероллерная трасса длиной около 3 км. Артикул 1060975 (Застройщик АО "СПЕЦИАЛИЗИРОВАННЫЙ ЗАСТРОЙЩИК "ЗЕЛЕНОГРАДСКИЙ")






























































































