


1 850 000 ₽/м²
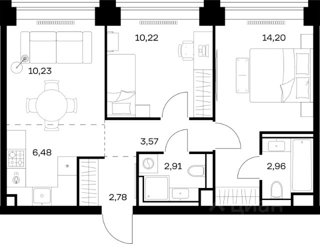
Резиденции в Парке Победы (Victory Park Residences) — это комплекс элитных семейных резиденций. Проект расположен в престижном районе Дорогомилово в одной минуте от Парка Победы, Поклонной горы и Кутузовского проспекта. Комплекс состоит из восьми элегантных корпусов, их облик разработан архитектурным бюро Сергея Скуратова. В отделке фасадов применяются натуральный камень доломит, стекло и медь. Богатая инфраструктура удовлетворит самые взыскательные запросы резидентов, к вашим услугам. Жемчужина проекта и первая в России торговая галерея "Виктори" (Victory Gallery) под управлением Гинза Проджект (Ginza Project). Это пространство, где каждая минута наполнена новыми открытиями: гранд спа с термальными источниками, салоны красоты, галерея кафе и ресторанов, выставочное пространство "территория искусств". Закрытый безопасный двор-сад "Виктори" (Victory Garden) полон возможностей наслаждаться природным пространством именно так, как вы любите. В тщательно проработанном ландшафте есть места и для уединённых размышлений, и для неспешных прогулок, и для весёлых игр с детьми, и для четвероногих друзей. В проекте представлены квартиры с панорамными окнами и высокими потолками от 3 до 3,85 метров. Квартиры с патио, пентхаусы с террасами на верхних этажах. Премиальная отделка в трех стилях на выбор.





































































































































