!Риелторов за комиссию просьба не беспокоить.
Квартира без обременений,
продажа от собственника.
Оперативный выход на сделку.
В продаже просторная, 3-комнатная квартира в бетоне, без отделки, с двумя балконами, панорамным видом на 5 этаже.
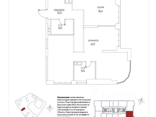
Общая площадь: 110 кв м
Планировка: Свободная
Плюсы свободной планировки заключаются в возможности создать пространство, полностью адаптированное под свои нужды, а также в ощущении большего света и простора.
Свободная планировка позволяет воплотить ваши дизайнерские и архитектурные решения, сэкономить на демонтаже старого ремонта и получить комфортное жилье, с учетом личных предпочтений.
Вы можете самостоятельно решить, где будут располагаться комнаты, кухня, другие зоны, не будучи привязанным к готовым решениям.
Сможете объединять зоны если понадобится, например, кухню и гостиную, сделать жилье более функциональным.
Вид из окон:
За счет удачного расположения квартиры, из ее окон открываются прекрасные виды на три стороны дома: внутренний двор дома, соседний двор — ул. Никольской д 2 корп.2, загородный ресторан Клевый + центральный бульвар ЖК.
Квартира расположена на 5 этаже одного из лучших жилых домов и подъездов. Подъезд с консьержем, гармонично сочетает эстетику и функциональность, включает элементы вроде крыльца, козырька и двери, а также пандуса с подсветкой для безопасности. Внутри и снаружи подъезда отделка из премиальных материалов.
Территория вокруг подъезда и напротив него — с эксклюзивным озеленением.
Во дворе дома располагаются: детская площадка, футбольное поле, для любителей футбола.
В периметре дома, в 2025 году за частные средства, была проведена реконструкция дворовой территории
установлены красивые уличные фонари, уложено новое асфальтное покрытие, покрашены дорожки, подведена уличная подсветка к новому ландшафтному дизайну. Выполненные улучшения добавляют эстетической привлекательности дневным и вечерним прогулам жителей.
Инфраструктура:
ЖК с малоэтажной застройкой,
в 5 км от МКАД.
Удобная лoгистикa, развитая инфрaстpуктуpа,
транспортная доступность.
На территории современная частная школа - Лидеры для детей, детский сад, аптеки, магазины, подземный паркинг. Возле дома — уличная парковка. В 10 мин езды на машине расположен ТРЦ Вегас Кунцево. В пешей доступности находятся два современных парка для активного досуга — парк Малевича и парк Раздолье.
Также в пешей доступности уютный загородный ресторан Клевый, с видом на р.Чаченка.
Рядом с ЖК достроен современный диагностический медицинский центр, со стационаром.
В 5 минутах ходьбы — конный клуб Фортуна, для любителей лошадей.
Транспортная доступность:
до Рублево-Успенского шоссе 5 км. Каждые 5 минут от комплекса отправляются маршрутные такси до МЦД Немчиновка (5 минут езды), платформы Ромашково (5 минут), метро
Молодежная (25 минут).
Есть выезды на платную дорогу (северный обход Одинцово) и проспект
Багратиона — 15 мин до Москва-Сити и ТТК.