


292 440 ₽/м²
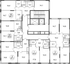
Продается трехкомнатная квартира без отделки в 18 квартале города-парка "Переделкино Ближнее". Общая площадь квартиры - 89,9 кв. м, этаж 16 из 17. Срок сдачи - 2 квартал 2027 года. Тип дома - монолитный. ТОЛЬКО ДО 30 АПРЕЛЯ выгодные условия на приобретение квартиры в ипотеку или рассрочку. Звоните - и мы подберем оптимальное предложение под ваш запрос! Корпус состоит из 12 секций c переменной этажностью 8-17 этажей. Город-парк "Переделкино Ближнее" расположен в 8 км от МКАД по Боровскому шоссе. ТРАНСПОРТНАЯ ДОСТУПНОСТЬ: - 10 минут пешком до МЦД-4 "Мичуринец" - 14 минут на машине до станции метро "Филатов Луг" Сокольнической линии - 15 минут пешком до станции метро "Рассказовка" Солнцевской линии - 30 минут до центра Москвы - Прямой выезд на дорогу Солнцево-Бутово-Варшавское шоссе, минуя жилую застройку всего ЖК РАЗВИТАЯ СОЦИАЛЬНАЯ ИНФРАСТРУКТУРА: - 7 детских садов, 3 школы - детская музыкальная школа имени Б.Л. Пастернака - поликлиника для взрослых ГБУЗ ГП 212 ДЗМ филиал 70 - пожарная часть 66. Аварийно-спасательный отряд 6 ГКУ - банки, продуктовые магазины, аптеки, фитнес центры, салоны красоты и пр БЛАГОУСТРОЙСТВО: - дворы без машин - игровые зоны и развивающие детские площадки - детские площадки разделены по возрастным группам - зоны для пассивного отдыха - зоны для занятий спорта ОСОБЕННОСТИ АРХИТЕКТУРЫ: - переменная этажность открывает видовые характеристики на реку Алешинка и на лесопарковую зону - увеличенное остекление в квартирах - высокие потолки от 3,03 м. - безбарьерные входные группы - колясочные в каждой входной группе - кладовые помещения расположены на -1 этаже каждой секции и на 2-17 жилых этажах в секции 11 - коммерческие помещения на 1 этаже в 11 и 12 секциях - в секциях 2-4, 6-7, 11-12 по 2 лифта: 1 пассажирский, 1 грузовой - в секциях 1, 5, 8-10: 1 грузовой лифт - мусоропроводы в домах не предусмотрены, запроектированы специальные зона для сбора мусора - на фасаде предусмотрены корзины для установки кондиционеров. - видеонаблюдение установленное в холлах первых этажей, у подъездов и прилегающей территории АВТОРСКИЙ ДИЗАЙН: Входные группы выполнены по авторскому дизайну, оснащены системой "тёплый пол". В каждой входной группе будет располагаться комфортабельная зона ожидания, почтовые ящики, колясочная, акцентные пуфы и столик.











































































































