Первичная продажа
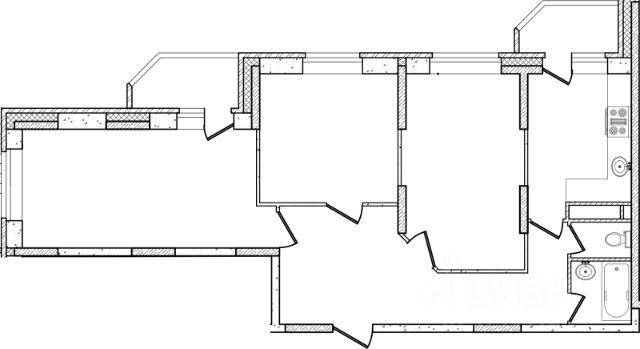
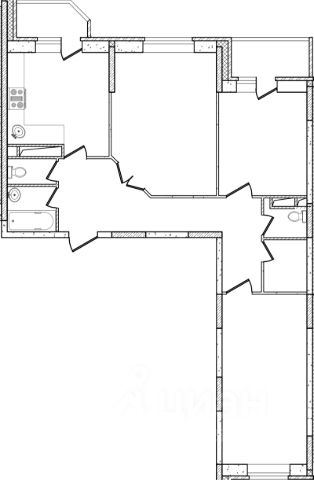
С отделкой
Остафьево
20 минут на транспорте
14 018 128 ₽
179 835 ₽/м²
О проекте "Новый Весенний"
Жилой дом, начинающий новую жизнь
Проект "Новый Весенний" расположен в зеленом поселке Сосновый Бор Подольского округа, рядом с большим лесопарком, что открывает жителям панорамные виды и комфортное пространство для жизни.
Подольск — крупный город с развитой инфраструктурой. Вблизи дома уже сформирована полноценная городская среда: парки, прогулочные зоны, школы, детские сады, поликлиники, торгово-развлекательные центры и МФЦ.
Проект сочетает в себе городскую инфраструктуру, транспортную доступность, близость природы и представляет собой дом переменной этажности (20-23 этажа) на 620 квартир.
Степень строительной готовности монолитных работ около 90% — впереди завершение верхних этажей, монтаж кровли, инженерных систем, установка окон, фасадные и отделочные работы. Кроме того, девелопер обустроит прилегающую территорию: детские и спортивные площадки, а также наземную парковку.
Преимущества проекта:
• Лесопарк в двух минутах пешком
Природа рядом — прогулки, спорт, отдых для всей семьи.
• Панорамные виды и светлые квартиры
Высокие этажи открывают прекрасные перспективы на Подмосковье. В квартирах предусмотрены лоджии с панорамным остеклением.
• Кладовые помещения для хранения сезонных вещей на -1 этаже
• Собственная коммерческая инфраструктура
Магазины, сервисы, кафе и аптеки на первом этаже дома.
• Транспортная доступность
Удобный выезд на Симферопольское шоссе, 25 минут до МКАДа, рядом станция МЦД-2 "Подольск".
• Развитая городская инфраструктура
Школы, детские сады, поликлиники, МФЦ, торговые центры и супермаркеты в шаговой доступности.
• Архитектура: фасады из четырех видов кирпича, лобби с дизайнерскими элементами
Локация:
Проект "Новый Весенний" расположен в Подольском округе Московской области, в поселке Сосновый Бор. Район сочетает природное окружение и развитую городскую среду:
• Лесопарк — 2 минуты пешком
• Центр Подольска — 15 минут на машине
• Гипермаркет "Глобус" и "Леруа Мерлен" — рядом
• Спортивно-оздоровительный комплекс с бассейном и картинг-клубом
Инфраструктура:
• В шаговой доступности:
• муниципальные и частные детские сады и школы
• детская и взрослая поликлиника
• больницы и медицинские центры
• МФЦ
• торгово-развлекательные центры
• супермаркеты, кафе, рестораны
• прогулочные зоны и лесопарк
Прилегающая территория благоустроена: детские и спортивные площадки, озеленение, наземная парковка.
Транспорт:
Общественный транспорт
• До м. "Аннино" — около 30 минут (маршрут 1231)
• До станции МЦД-2 "Подольск" — около 10 минут на машине (маршруты 7к, 44)
На автомобиле
• 15 минут до центра Подольска
• 30 минут до МКАДа
• около 1 часа 15 минут до центра Москвы.













































































