Первичная продажа
С отделкой
сдача ГК: 4 кв. 2027 года
Бунинская аллея
8 минут на транспорте
20 705 430 ₽
297 065 ₽/м²
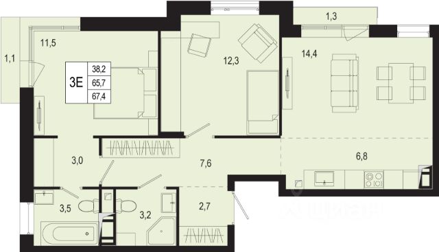
Продаётся 3-комн. квартира площадью 69,7 кв.м на 5 этаже 16 этажного дома (Корпус 2.6/1.2, Секция 2) проекта ПИК Бунинская набережная. Светлый просторный подъезд на уровне земли, функциональная планировка, большие окна, с предчистовой отделкой.
Удобное расположение:
18 минут пешком от м. "Потапово" и 12 минут на автомобиле до станции "Бунинская аллея".
12 минут на автомобиле до трассы Солнцево — Бутово — Варшавское шоссе.
20 минут на автомобиле до МКАД и Калужского шоссе.
1520 минут езды до живописных парков: "Бутовский лесопарк", заказник "Южное Бутово".
Особенности проекта
Камерный квартал в Новой Москве, на берегу Ивановского пруда. Одна из ключевых особенностей проекта — квартиры с панорамным видом на воду.
Архитекторы вдохновились локацией проекта: природные оттенки и активная пластика корпусов напоминают рельефные выступы на берегу, а окна отражают водную гладь, визуально объединяя дома с природой.
Преимущества проекта
Светлые и просторные лобби с зонами ожидания.
Подземный паркинг.
Набережная и пешеходная аллея для прогулок.
Парк на склоне с игровой зоной.
Готовая инфраструктура района: 3 школы, 6 детских садов, взрослая и детская поликлиники. Артикуль 968500 (ООО СЗ "Стройком")










































































