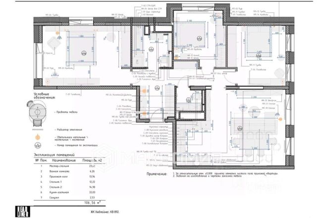
Внимание, уникальное и очень редкое предложение! Для ценителей современного ремонта, высокого качества, тишины и приватности. Эксклюзивная трехкомнатная квартира с двумя балконами и двумя гардеробными комнатами, на 4/6 этаже в приватной малоэтажной секции повышенного комфорта, в Хедлайнере. Самая желанная и востребованная секция в ЖК, где нет ощущения персловутого муровейника, отделка экстерьера фасадов выполнена из кирпича, всего по 3-5 квартир на этажах, тишина и приватность, быстрый выход к паркингу сразу из лифта, 10 минут пешком до Москва Сити и ТРЦ Афимолл, высокие потолки 3.1 м., увеличенные окна, изолированный закрытый двор-сад с детскими и спортивными площадками, отсутствие сильных ветров рядом с домом, развитая инфраструктура и много остальных преимуществ. В корпусе достаточно подземных машиномест, они дешевле на 2-3 млн., чем в соседних. Дом сдан в 2022 году, закончены шумные ремонтные работы, лифты исправно работают и не бывает очередей. Из окон квартиры возможно наблюдать как дети выходят из подъезда и доходят до дверей школы или детского сада в течение 2 минут через закрытый двор-сад.
В квартире выполнен дизайнерский ремонт по индивидуальному проекту с использованием качественных натуральных материалов. Делали под себя, нигде не экономили, никто не жил. Просьба не путать и не сравнивать с дешевыми однотипными и недолговечными флипперскими ремонтами. Удовольствие от высокого качества всегда длится дольше, чем радость от низкой цены. Функциональность и эргономика продуманы до мелочей, в каждом помещении веет простором. Большая часть окон выходят на тихий и уютный двор-сад. Планировка - распашонка правильной прямоугольной формы, с двумя балконами и увеличенными потолками и окнами, что обеспечивает в квартире достаточно солнечного света. Напольное покрытие - инженерная доска из натурального дуба, кухня и вся мебель на премиальных доводчиках, выполнена под заказ брендом Мария из МДФ покрытой эмалью. Вся сантехника, инсталляция, смесители и две ванны из искусственного камня премиального бренда ABBER, вся кухонная техника - SMEG. Умный дом, с возможностью дополнительного оснащения, электропривод штор с дистанционным управлением, электрокамин с функцией увлажнения помещения и подсветкой, несколько вариантов освещения, с настраиваемой световой температурой в каждой комнате от итальянского премиального бренда MAYTONI, все розетки, выключатели, регуляторы теплого пола тоже от MAYTONI серии VOLTUM. Потолок из ГКЛ с теневым профилем по всей квартире с подсветкой и эффектом парящего потолка, теплый пол в зоне плитки, премиальная практичная краска на стенах, толстые и плотные премиальные двери скрытого монтажа весом по 35 кг., подоконники из искусственного камня, дизайнерские радиаторы, выполненные на заказ под интерьер каждого помещения. Приобретатель может за пару часов на свой вкус установить трендовые стеновые панели и придать квартире индивидуальности.
- Свободная продажа
- Один взрослый собственник
- Без перепланировок и обременений