Первичная продажа



9 акций
С отделкой
Онлайн-бронирование
сдача ГК: 3 кв. 2028 года
Мичуринец
16 минут пешком
17 165 807 ₽
385 748 ₽/м²
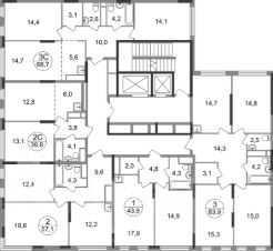
Продается двухкомнатная квартира с отделкой в городе-парке "Переделкино Ближнее".
Общая площадь квартиры - 44,5 кв. м, этаж 15 из 17.
Срок сдачи - 3 квартал 2028 года.
Тип дома - монолитный.
ТОЛЬКО ДО 31 МАЯ выгодные условия на приобретение квартиры в ипотеку или рассрочку.
Звоните - и мы подберем оптимальное предложение под ваш запрос!
Корпус расположен в 13 квартале строительства и состоит из 6 секций с переменной этажностью 12-17 этажей.
Около 13 квартала запланировано строительство многоуровневого паркинга на 300 м/мест.
13 квартал имеет уникальное расположение и находится непосредственно на берегу Федосьинского пруда, который является сердцем города-парка "Переделкино Ближнее".
Город-парк "Переделкино Ближнее" расположен в 8 км от МКАД по Боровскому шоссе.
ТРАНСПОРТНАЯ ДОСТУПНОСТЬ:
- 15 минут пешком до станции МЦД-4 "Мичуринец"
- 25 минут пешком до станции метро "Рассказовка" Солнцевской линии
- 30 минут до центра Москвы
- 2026 г. - открытие трассы Солнцево-Бутово-Варшавское шоссе
РАЗВИТАЯ СОЦИАЛЬНАЯ ИНФРАСТРУКТУРА:
- 7 детских садов, 3 школы
- банки, продуктовые магазины, аптеки, фитнес центры, салоны красоты и пр
БЛАГОУСТРОЙСТВО:
- дворы без машин
- игровые зоны и развивающие детские площадки
- зоны для созерцательного и медитативного отдыха
- зоны для занятий спортом
ОСОБЕННОСТИ АРХИТЕКТУРЫ:
- высокие потолки от 3,03 м
- безбарьерные входные группы
- колясочные в каждой входной группе
- кладовые помещения расположены на -1 этаже каждой секции
- в каждой секции 2 лифта: 1 пассажирский, 1 грузовой
- на фасаде предусмотрены корзины для установки кондиционеров
АВТОРСКИЙ ДИЗАЙН:
Входные группы выполнены по авторскому дизайну, благодаря панорамному остеклению наполнены естественным светом.
В каждой входной группе будет располагаться комфортабельная зона ожидания с возможностью зарядить электронные устройства, почтовые ящики, колясочная, акцентные пуфы и столик.


























































































































