СВЕДЕНИЯ СООТВЕТСТВУЮТ ДАННЫМ РОСРЕЕСТРА.
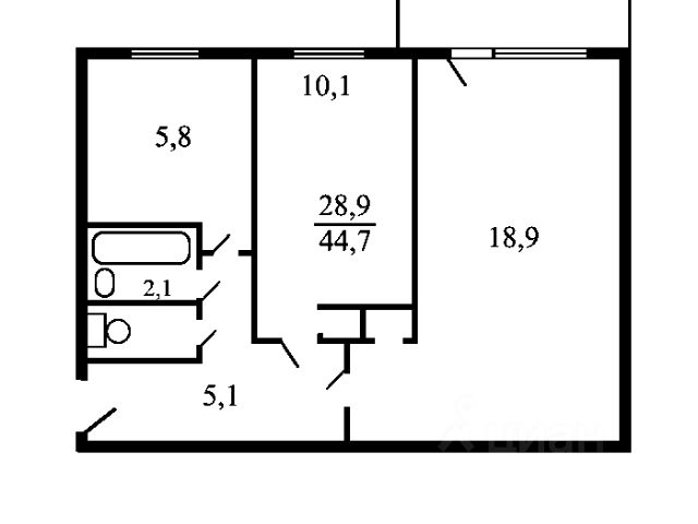
Квартира. Шестой этаж. Трехкомнатная квартира. "Распашонка". Общая площадь - 60,2 м2, жилая площадь 38,2 м2, большая кухня 8,2 м2, большой коридор 9,9 м2, кладовая 0,9 м2, раздельный сан. узел; ванная 2,1 м2 и туалет 0,9 м2. Изолированные комнаты: большая (гостиная) 16,6 м2 светлая комната с большим окном, спальня - 12,1 м2 с остекленной лоджией 2,6 м2 и видом на тихий озелененный внутренний двор, спальня - 9,5 м2. Имеется действующий городской телефон. Перепланировки не производились, все в соответствии плану БТИ. В квартире старый ремонт. Есть старая мебель и старая бытовая техника. Квартира будет свободна от мебели и бытовой техники. По договоренности оставлю.
Собственники. Два совершеннолетних дееспособных собственника. В собственности более 15 лет. Без признаков предбанкротного состояния.
Сделка. Без обременений, ареста, долгов и разных сложностей. Мат. капитал не использовался. В квартире нет зарегистрированных граждан. Прямая продажа. Полная сумма в договоре. Сведения имеют документальные подтверждения и соответствуют выписке из ЕГРН. Все необходимые документы есть в наличии, будут предоставлены по запросу.
Приемущества. Сложилась ситуация, когда рынок вторичной недвижимости всё более востребован. При этом в продаже не так много объектов, которые можно безопасно приобрести, защитив своё право дальнейшего владения. Объект с хорошей историей более ценен, чем объект с хорошим ремонтом. Ремонт можно сделать, а вот создать хорошую историю объекта и обеспечить его юридически чистыми документами достаточно проблематично. Значительными моментами в приобретении недвижимого имущества являются: история объекта, количество переходов права собственности, длительность владения объектом текущими собственниками, юридическая чистота документов. Так же имеют значения: сделкоспособность и дееспособность собственников, их возраст, кредитная история и их социальный статус. Обращая внимание на этот объект, вы гарантированно увидите, на сколько выгодно он отличается.
Агентов прошу - не беспокоить.
Окружение. Озелененный наружный двор с детской площадкой, отделяющий дом от дороги, есть места стоянки для автомобилей. Тенистый, озелененный внутренний двор с уютной дорожкой для прогулок.
Инфраструктура. В пешей доступности детские сады и несколько школ. Через дорогу вход в парк с небольшим водоемом. Храм. Рядом есть: Ozon, Wildberries, Пятерочка. В семи минутах ходьбы большой торговый центр и большое количество магазинов разного профиля. В доступной близости площадка для домашних животных.
Ведется строительство станции метро Гольяново. Запуск в 2028году. Рядом автобусные остановки. От станции метро Щелковская 15 минут на автобусе. Недалеко мало оживленный выезд на МКАД. Район окружен лесными массивами Лосиного Острова и Измайловского лесопарка. В пешей доступности несколько водоёмов с обустроенными площадками для детей и взрослых. Район активно озеленяется и благоустраивается, при этом в нем нет новостроек. Купить квартиру На улице Красноярская в Москве.