ЭКСКЛЮЗИВНОЕ ПРЕДЛОЖЕНИЕ! Сочетающее в себе УДАЧНУЮ планировку, УДОБНОЕ расположение, САМУЮ ВЫГОДНУЮ стоимость!
КВАРТИРА 3-Х КОМНАТНАЯ на 4-м этаже ДОБРОТНОГО панельного ДОМА (после капитального ремонта), Общей площадью 63 кв.м., расположена в ПРЕСТИЖНОМ районе СОКОЛЬНИКИ в окружении более 500 га леса и объектов исторического наследия.
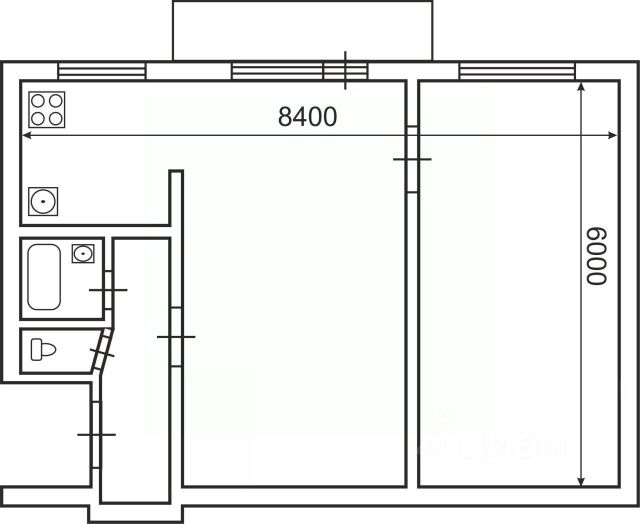
КВАРТИРА в ЗАМЕЧАТЕЛЬНОМ состоянии, полностью УКОМПЛЕКТОВАНА МЕБЕЛЬЮ и ТЕХНИКОЙ, имеет ЭРГОНОМИЧНОЕ классическое планировочное решение: компактная ПРИХОЖАЯ переходящая в КОРИДОР, просторная ГОСТИНАЯ, ДВЕ изолированные СПАЛЬНИ в ОДНОЙ из которых есть выход на ЛОДЖИЮ, другая СПАЛЬНЯ объединена с БАЛКОНОМ, отдельная КУХНЯ с обеденной зоной, САН/УЗЕЛ раздельный с установленной ванной. Окна на две СТОРОНЫ с хорошими видами. Пол ламинат и керамогранит. МЕСТА для хранения, СПЛИТ система. На площадке четыре квартиры. В доме ЗАМЕЧАТЕЛЬНАЯ шумоизоляция.
Придомовая ТЕРРИТОРИЯ ухоженная, много зелени, спортивная и детская площадки. Во дворе всегда есть места для ПАРКОВКИ, есть закрепленное (с номером) за собственником - машиноместо.
ПРЕИМУЩЕСТВОМ проекта является наличие всего необходимого для КОМФОРТНОГО проживания и реализации повседневных потребностей: создана полная социальная, бытовая и торговая ИНФРАСТРУКТУРА (огромное влияние Парка СОКОЛЬНИКИ с большим лесным массивом со своей культурной, оздоровительной, деловой, спортивной, развлекательной активностью. Кроме того, множество магазинов, кафе, ресторанов, школ, детских садов, больниц и поликлиник, ТЦ Золотой Вавилон Ростокино, Тройка Плаза, стадион Сокольники, футбольная академия Спартак).
Развитая ТРАНСПОРТНАЯ доступность: в шаговой доступности метро-Сокольники и Преображенская площадь, близость центра Москвы, основные автомобильные шоссе и ТТК, автобусы и трамваи.
СОБСТВЕННОСТЬ. ПРЯМАЯ ПРОДАЖА!!! Без обременений и долгов! Подходит под ипотеку! Быстрый выход на сделку!!! квартиры вторичка На улице Большая Остроумовская в Москве.