


1 057 618 ₽/м²
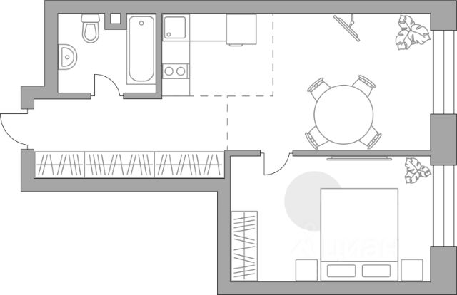
В элитном жилом комплексе "Монблан" на Шлюзовой набережной в Замоскворечье напрямую от девелопера ГК "Галс-Девелопмент" представлена 1-комнатная квартира квартира на 13 этаже общей площадью 61.80 м². Квартира предлагается без отделки. "Монблан" - элитный жилой комплекс в сердце Замоскворечья, в уникальном месте Москвы. Проект расположен в хорошо знакомом месте, напротив Дома музыки, прямо у воды. Поездка от жилого комплекса до Кремля займёт 10 минут по живописным историческим набережным города. Неординарные архитектурные формы, разработанные бюро "СПИЧ", манят взгляды к этому уникальному дому. Внутренний мир "Монблан" является продолжением его внешнего облика: - Авторская отделка лобби высококачественными материалами; - Панорамные окна, высокие потолки, квартиры с видовыми террасами и вариативность планировочных решений; - Уникальные жилые форматы с особой эстетикой: квартиры с личными террасами площадью около 60 м² и пентхаусы площадью до 228 м². На территории жилого комплекса "Монблан" предусмотрена наземная гостевая парковка. В подземной части организован двухуровневый паркинг с зарядными станциями для электрокаров. Жить у реки большое удовольствие. Ветер очищает воздух, лучи отражаются от речной глади, рядом с водой совершенно особый свет, что, конечно, увидят будущие резиденты "Монблан" в своих интерьерах.








































































































