


552 400 ₽/м²
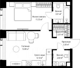
Старт продаж новой очереди! Продаётся 1-комнатная квартира общей площадью 32.51 м² без отделки в ЖК VEER на 2-м этаже 25 этажного дома. VEER.2 — вторая очередь футуристичного квартала бизнес-класса VEER. Это новая экосистема в престижном Западном округе Москвы, поражающая масштабностью внутренней инфраструктуры. ЖК находится всего в 5 минутах от Кутузовского проспекта и в 15 минутах от Сколково. Ансамбль из четырех стеклянных башен с доминантой в 237 метров разработан по принципу современного урбанизма и выражен в лаконичных объемах — параллелепипедах со сглаженными углами, которые придают зданиям утонченный вид. Расположение и транспортная доступность: • Образовательный комплекс в составе топовой школы, состоящий из двух зданий: основное на 1500 школьных и 450 дошкольных мест, отдельное здание детского сада на 300 мест. • Парк "Долина реки Сетунь" площадью более 700 гектаров • 15 минут по Кутузовскому проспекту до ужина в центре с видом на Москву-реку • Рядом МГУ, МГИМО, РАНХиГС и Академия ФСБ • м. "Давыдково" рядом и новые станции метро в будущем Инфраструктура: Двор в VEER.2 — это ассиметричные холмы, каменные "лабиринты", зеленые ковры и хвойные островки с единой живой экосистемой. Здесь есть все: • Павильон умиротворения Место отдыха под навесом в спокойной части двора, окруженное деревьями. • Активная тропа Тактильная дорога из камней разного диаметра для расслабляющих прогулок. • Бизнес-гарден Оборудованное пространство для работы на свежем воздухе со столом и встроенными розетками. • Детская площадка Двухуровневая площадка "Ботаника" с песочницей, переговорной трубой и горкой "Дружба". Компания MR Group предлагает своим клиентам специальные условия приобретения квартир в рамках программ ипотечного кредитования от банков-партнеров.


























































































































































