


421 830 ₽/м²
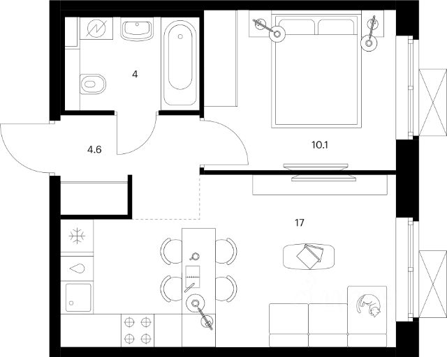
Продается 1-комн. кв-ра площадью 41.40 кв.м на 17 этаже 33 этажного монолитного дома в "Люблинский парк" от ПИК. Жилой квартал "Люблинский парк" расположен на юго-востоке Москвы, в шаговой доступности от станции "Братиславская". На метро до центра ехать всего 30 минут. Также недалеко станция МЦД "Перерва", от которой можно уехать в Москву или в область. В проекте 54 жилых корпуса, три школы, семь детских садов, поликлиника. В районе есть все условия для комфортной жизни: торговые центры, школы, детские сады, поликлиники и спортивные центры. Рядом находятся усадьба Люблино, скверы и парки. Различные магазины, кафе и другие сервисы откроются на первых этажах, а на подземных будут паркинги с удобной навигацией. В зелёных дворах без автомобилей мы построим детские площадки и места для отдыха. А ещё "Люблинский парк" стал третьим проектом ПИК с большой игровой площадкой ПлейХаб, которая уже открылась между 1-м и 2-м блоками на безопасном расстоянии от дороги. Новое детское пространство "Остров" воплощает идею бесконечной игры. Ландшафт площадки — это ещё и игровой элемент, который помогает детям придумывать множество самых разнообразных игр. Здесь интересно детям разного возраста — от малышей до подростков. Жителям квартала Люблинский парк и их друзьям доступен проект ПИКСПОРТ — это бесплатные занятия с профессиональными тренерами. Тренировки по разным направлениям, например йога, фитнес, бег, воркаут, проходят как в группе на улице рядом с домом, так и онлайн. Артикуль 896083 (ООО СЗ "Люблино Девелопмент")


















































































































































