Продажа от застройщика.
О проекте:
В основе Нексус Аквилон лежит принцип трехминутного города, где вся жизнь: работа, отдых, здоровье, общение и культура сосредоточены в шаговой доступности. Он не просто экономит время, а кардинально перераспределяет его.
В этих условиях главным логистическим узлом становится лифт, который в считанные секунды переносит из квартиры в собственный фитнес-рум, панорамный двор или современный коворкинг.
Здесь вы сами решаете: оказаться в эпицентре событий, чувствуя пульс мегаполиса, или наслаждаться тишиной и приватностью своего пространства. И главное вы можете переключаться, находя идеальный баланс каждый день.
Нексус Аквилон - ваша трехминутная столица!
Транспортная доступность
Нексус Аквилон дарит независимость от расстояний и логистики. Ваше время теперь принадлежит только вам
- меньше минуты до метро Молодежная
- 2 минуты до Рублевского шоссе
- 10 минут до Проспекта Багратиона
- 15 минут до Москва-Сити
- 10 минут до МКАД
- 20 минут до ТТК
Архитектура
46-этажная башня станет новой архитектурной доминантой, символизирующей динамику и технологичность современной жизни.Комбинация алюминиевых кассет, стеклофибробетона и витражного остекления фасада создает монументальную оболочку, а теплая цветовая гамма добавляет масштабной форме визуальной теплоты.
Три разных по характеру стороны башни от строгой "зубчатой" геометрии до живописных эркеров создают многогранный, ритмичный образ, дополняемый невесомыми балконами со стеклянным ограждением.
Архитектура проекта живет в диалоге с городом: променад вдоль парящего стилобата со стрит-ретейлом становится естественным продолжением общественного пространства.
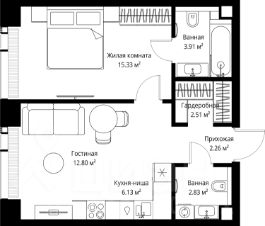
Планировки в концепции Разумные метры
Мы создали квартиры, где пространство работает на ваш комфорт. В основе концепции "Разумные метры" правильная геометрия помещений и тщательно продуманные эргономичные решения.
- Высота потолков до 3,55 метров
- Многообразие планировок: от студий до четырехкомнатных квартир классического и евро-формата
- Многофункциональные пространства: кухни-гостиные для приема гостей и зонированные мастер-спальни
- Продуманная инфраструктура быта: отдельные постирочные и гостевые санузлы
- Удобные системы хранения: встроенные ниши и гардеробные зоны
- Уникальные форматы: пентхаусы, комнаты с двумя окнами, угловое панорамное остекление
- Возможность открытия окон на всех высотах
Для студий и однокомнатных квартир мы предлагаем готовое решение отделку White box, позволяющую сразу приступить к чистовому ремонту на ваш вкус. Для остальных планировок предусмотрена черновая отделка, чтобы воплотить все интерьерные пожелания.
Здесь пространство адаптируется под ваш образ жизни, а не вы подстраиваетесь под планировку.
Приватное благоустройство
Скрытый на виду панорамный двор-терраса, расположенный на высоте 7 метров, объединил внутреннюю камерность и внешнюю динамику городской жизни.
- Многоуровневое озеленение с всесезонными композициями, сохраняющим