


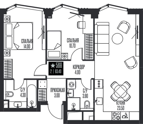
801 430 ₽/м²
ЖК Айс Тауэрс — жилой комплекс премиум-класса, расположенный в престижном районе Западного административного округа Москвы. Современная архитектура и панорамное остекление формируют динамичный облик комплекса, открывая впечатляющие виды на город и природные территории. Придомовая территория продумана до мелочей: приватные дворы с детскими площадками, воркаут-зоны, места для отдыха и прогулок. Зеленые пространства сохраняют уединённость и создают ощущение жизни в собственном парке. Прямой доступ к особо охраняемой природной зоне делает повседневные прогулки особенно комфортными. ЖК Айс Тауэрс предлагает развитую инфраструктуру и высокий уровень сервиса, которые обеспечивают комфорт на каждом этапе жизни. На территории ЖК есть фитнес-зал, бассейн, термальный комплекс и просторный комьюнити-центр.. В нём оборудованы приватные кабинеты, куда можно пригласить личного массажиста или стилиста, универсальные залы для тренировок, коворкинг-гостиная и тихая библиотека. Также есть детская игровая комната, пространство для мастер-классов и встреч. Особое внимание уделено сервису: круглосуточная консьерж-служба, valet-сервис, беллмены, внутренняя доставка и электронные почтовые ящики. Пространства хранения для велосипедов и колясок, душевые для домашних животных и услуги груминга делают повседневную жизнь удобной и продуманной до мелочей. Все процессы легко контролируются через мобильное приложение: от вызова служб до записи на занятия или услуги. Опционально возможна отделка white box. Комплекс оснащён современными инженерными системами: "умный дом", видеонаблюдение, системы очистки воздуха и бризеры обеспечивают максимальный комфорт и безопасность. ЖК Айс Тауэрс — это закрытое сообщество, где забота о времени и качестве жизни становится стандартом. Продается 2-комнатная квартира в районе Проспект Вернадского в Москве.






















































































































