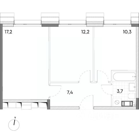
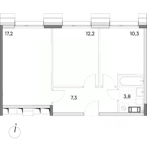
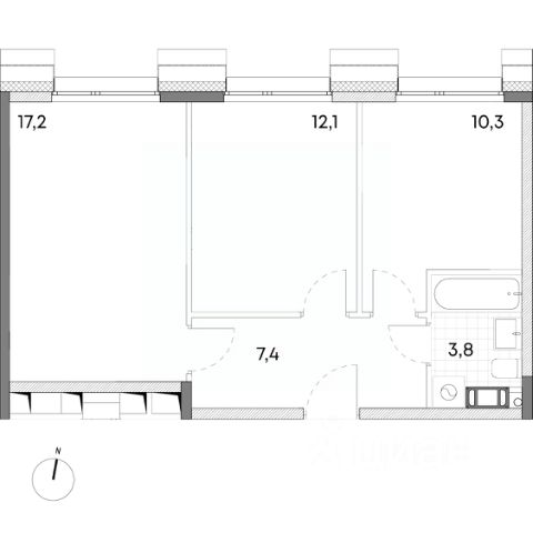
191 500 ₽/м²
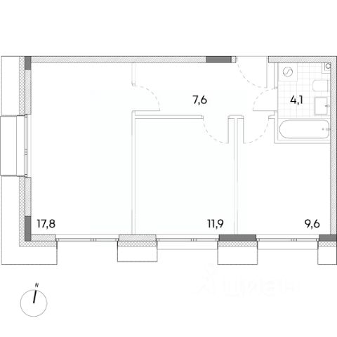
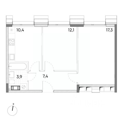
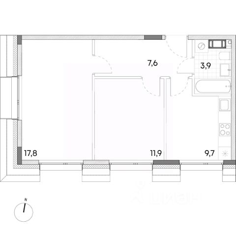
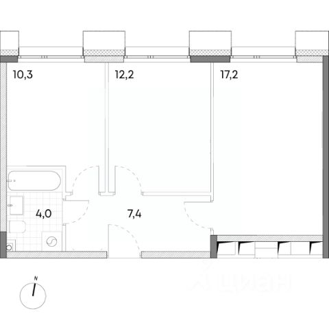
Продаются 2-комнатные апартаменты в сданном доме (Александровка, 6), срок сдачи: II-кв. 2025, общей площадью 51 кв.м., на 2 этаже. Проект Wellbe, расположенный в окружении тенистой зелени, станет архитектурным событием в Зеленограде! Современный комплекс апартаментов с готовой отделкой и системой "Умный дом" расположится на улице Александровка всего в 2 километрах от будущей станции МЦД Крюково (Зеленоград). На благоустроенной закрытой территории комплекса для вас будет создано общественное пространство, где будут размещены детская и спортивная площадки, а необходимая для комфортной жизни инфраструктура будет расположена на первом этаже. 2-комнатная квартира в готовой новостройке в районе Крюково в Москве.






















































































