

595 584 ₽/м²
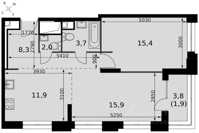
СТАНДАРТНАЯ ИПОТЕКА 10% БЕЗ НАЦЕНКИ! Прямая продажа от застройщика! Жилой Комплекс премиум-класса. Продаётся 2-к квартира номер 216 общей площадью 59.1 кв.м. на 5-м этаже 24 этажного здания. Отделка Whitebox. Цена с учётом скидки. Особенности квартиры: - Угловая планировка - больше пространства для ваших идей. - Увеличенное количество окон - дополнительное освещение и свежий воздух. - Гостевой санузел - комфорт и удобство для ваших гостей. - Евроформат - просторное и удобное жилье с отличной планировкой. - Место для игры/занятия спортом - идеальное пространство для активных детей. - Можно оборудовать рабочее место - комфорт для работы и учёбы. - Просторная мягкая зона - комфорт и уют для отдыха всей семьи. - Линейная кухня - функциональность и практичность в одном решении. - Возможность добавить спальное место - дополнительный комфорт для гостей. - Лоджия - уютное место для отдыха и тишины. Квартира с предчистовой отделкой (White box). Вам не придется заниматься черновыми и трудоёмкими работы, а чистовую отделку и дизайн - сделайте на свой вкус. Информация о комплексе: Премиум-класс прямо на берегу Москвы-реки, с прямым выходом на набережную и потрясающими панорамными видами! На Шелепихинской набережной, расположен причал для речных трамваев. Вам станет доступна единственная столичная транспортная артерия, на которой никогда нет пробок: 20 минут до Москва-Сити, да еще и с вдохновляющими видами по пути. Входные группы домов - это индивидуальные дизайн-проекты, посвященные трем главным местам в жизни Лермонтова: Тарханам, Петербургу и Кавказу, которые объединяют сочетание эстетики и комфорта. Бурная жизнь соседей больше не сможет нарушить ваш покой, а к вам никто не постучит, если вы захотите прибавить громкость в любимом музыкальном треке или Ваши дети захотят устроить ночную пробежку! Живите только по своим правилам. В каждой квартире подключен базовый пакет Умная квартира забудьте о беспокойстве о протечке; настройте свои сценарии управления техникой и электричеством; общайтесь с Умной квартирой голосом; Можете легко расширить базовый пакет и подключить дополнительные опции и устройства, чтобы из любой точки мира управляй работой бытовых приборов и систем, например: включайте разогрев ужина; регулируйте яркость яркость света; регулируйте громкость музыки; настраивайте работу теплых полов; Транспортная доступность: В 50 м до новой станции метро "Звенигородская". Вторая улица от ЦАО и соседство с Москва-Сити. Все виды общественного транспорта, в том числе речные трамвайчики, в пешей доступности Внутренняя инфраструктура: Основная артерия жизни квартала - центральный бульвар. Вы с радостью обнаружите, что путь до престижных школ и вузов, развлечений и магазинов сжался до нескольких минут езды на машине. К вашим услугам:























































































