267 411 ₽/м²
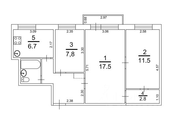
Код объекта: 1962138. Продаётся трёхкомнатная квартира в Москве на Игральной улице, 7. Это отличная возможность для тех, кто ищет просторное жильё в спокойном районе с развитой инфраструктурой. Под окнами есть возможность организовать цветник. Описание квартиры: Просторная кухня, 8,6 м2. Много мест для хранения вещей. Окна выходят на улицу и во двор (распашонка). Квартира не угловая. Раздельный санузел. Изолированные комнаты. Высота потолков 2,64 м. Высокий первый этаж. Квартира продаётся с мебелью ( по договоренности). Дом и двор: Зеленый просторный двор с широкими дорогами, большое парковочное пространство во дворе дома. Инфраструктура рядом: Район со сложившейся инфраструктурой дом находится недалеко от парка Лосиный парк (9 мин.), стадион "Родина" в 10 мин. Поблизости есть зелёные зоны для прогулок и занятий спортом. около дома несколько сетевых продуктовых магазинов, пункты выдачи заказов популярных маркетплейсов, аптеки, салоны красоты и парикмахерские, кафе, отделения почты и МФЦ недалеко школы и детские сады, большой выбор детских развивающих кружков поблизости детская и взрослая поликлиники, а также несколько частных клиник, фитнес-клубы, тренажёрные залы Транспортная доступность: Район Богородское обладает прекрасной транспортной доступностью. В пешей доступности (17 мин.) находятся станция метро Бульвар Рокоссовского. Рядом с домом остановки общественного транспорта. В пешей доступности (5 мин) находятся трамвайные пути. Условия продажи: Какие-либо обременения (в том числе задолженности по оплате коммунальных услуг) на квартиру отсутствуют. Альтернативная продажа. Полная стоимость в договоре. В собственности более 5 лет. Два взрослых собственника. Эта квартира станет отличным выбором для тех, кто ценит комфортное и спокойное проживание в зеленом районе. Не упустите шанс стать владельцем этого уютного жилья! Звоните прямо сейчас, чтобы узнать больше или договориться о просмотре. Работать с МИЭЛЬ выгодно и надёжно. 1. покупателю выдаётся Правовой сертификат, гарантирующий юридическую чистоту объекта. 2. возможна ипотека с особыми условиями для клиентов МИЭЛЬ от банков-партнёров, работаем с любыми источниками финансирования (материнский капитал, военный сертификат и т.д.). 3. бонусы по партнёрским программам МИЭЛЬ на товары и услуги от известных брендов. Продам квартиру на улице Игральная в Москве.










































































