


741 570 ₽/м²
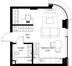
Продается студия от застройщика в жилом мультиквартале СИТИДЗЕН на 2-м этаже в корпусе #5. Общая площадь лота составляет 21 м² В лобби корпуса #5 представлены: 1. Small-лобби с зоной отдыха 2. Почта 3. Колясочная 4. Лапомойка 5. Лифтовой холл 6. Санузел 7. Помещение уборочного инвентаря СИТИДЗЕН — это большой город в миниатюре. Инфраструктура мультиквартала организована по принципу шаговой доступности от подъезда до любой нужной точки: супермаркета, кофейни, салона красоты, фитнес-центра и др. В домах представлены лобби с атмосферой премиального резорта, дизайн которых вдохновлен французскими интерьерами 1960-х годов. Концепция благоустройства территории мультиквартала предусматривает большое количество вечнозеленых растений, что создает ощущение максимальной близости к природе. Жителей квартала ждут места для отдыха, игр, занятий спортом и прогулок с домашними питомцами. В приватном дворе с собственным садом предусмотрена зеленая комьюнити-гостиная для дружеского отдыха и общения, одна из стен которой подходит для кинопроекций, а также зеленый рабочий кабинет в саду (бизнес-гардена), оборудованный wi-fi станцией и usb-разъёмами для зарядки устройств. Маленьких жителей ждут авторские игровые площадки для разных возрастных групп (от 0 до 12 лет). Начало строительства - 1 квартал 2024 года. Окончание строительства - 3 квартал 2027 годаКомпания MR предлагает своим клиентам специальные условия приобретения квартир в рамках программ ипотечного кредитования от банков-партнеров.








































































































