Первичная продажа
С отделкой
Онлайн-бронирование
дом сдан
Подольск
17 минут на транспорте
7 409 945 ₽
197 073 ₽/м²
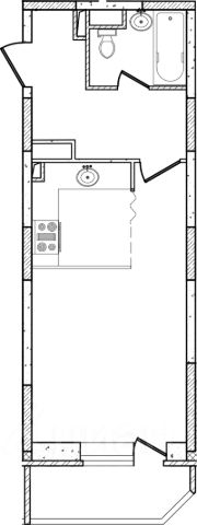
Выгода до 27%. Срок сдачи 2026 год. Продажа напрямую от застройщика в жилом комплексе комфорт класса "Домодедово парк" площадью 37.60 кв.м на 16 этаже 17 этажного дома. Квартира с предчистовой отделкой.
Квартиры
• Продуманные планировочные решения обеспечивают максимум естественного света.
• Свободная планировка позволяет воплотить любые дизайнерские идеи.
• Высота потолков в чистоте — 2,72 м.
• Двухкамерные стеклопакеты сохраняют тепло в холодное время года.
Транспортная доступность
• Три крупных шоссе рядом: М4 "Дон" (бесплатный участок), Каширское и Симферопольское.
• 39 минут на электропоезде до центра Москвы.
• Железнодорожная станция — в пешей доступности.
• Возможность выбрать удобную ветку метро с 5 остановками электропоезда в Москве.
• Скоростная линия МЦД для быстрого передвижения.
• Остановка маршрутного такси прямо на территории жилого комплекса.
Холлы
• Удобные помещения для хранения колясок и велосипедов на первых этажах — экономия места на лоджиях.
• Витражное остекление от пола до потолка создает ощущение пространства и уюта с порога.
• Высота потолков — 3,3 м, что дарит простор и лёгкость.
• Полы отделаны элитной плиткой Kerama Marazzi.
Дома
• Надежный монолитный железобетон — проверенный временем материал.
• Яркие фасады с облицовкой из керамогранита подчеркивают выразительность архитектуры.
• Подвесные корзины для кондиционеров обеспечивают удобство монтажа и обслуживания.
• Собственные коммуникации создают автономный комфорт.
Инфраструктура
• Действующие детский сад и школа — ваши дети учатся рядом с домом.
• В 2026 году откроются ещё два детских сада — до них всего 5 минут ходьбы.
• Вторая школа находится в стадии проектирования — забота о будущем.
• Работающие терапевтический и стоматологический кабинеты для поддержки здоровья.
• Продуктовые магазины, аптеки и кофейни уже рядом — всё необходимое в шаговой доступности.
• В 12 корпусе откроется супермаркет — ещё больше удобства для жителей.
Экология и природа
• Экологически благоприятная территория — забота о вашем здоровье.
• Чистый воздух для легкого дыхания и хорошего самочувствия.
• Обустроенная набережная реки Пахры рядом с домом — идеальное место для пробежек, прогулок и отдыха с семьей.










































































