320 272 ₽/м²
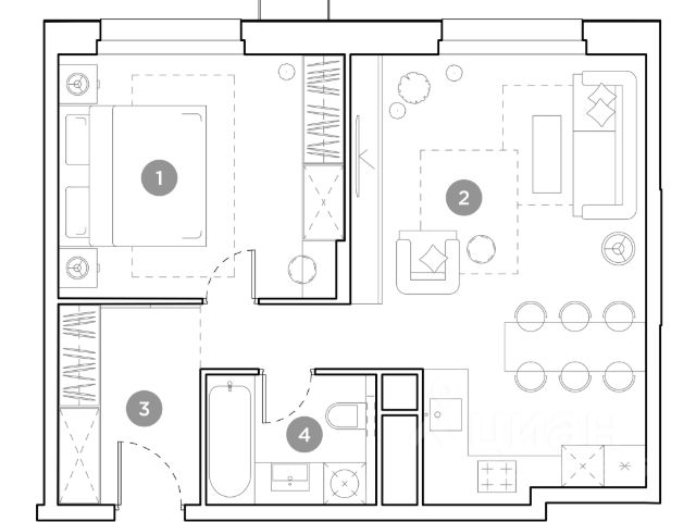
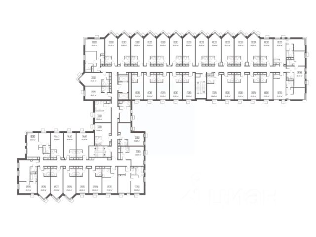
Продаётся уютный 1-комнатный апартамент в 9-ти этажном комплексе, общей площадью 39,3 кв.м., на 2 этаже. Апартаменты с чистовой отделкой "под ключ" и большими окнами. В некоторых лотах предусмотрен Эркер много света и очень красиво. Архитектурный облик комплекса выполнен в современном стиле, на огороженной территории благоустройство, зоны отдыха и детские площадки. На первых этажах вы найдете кофейни и рестораны, продуктовые магазины, центры бытовых услуг, аптеки и другие объекты необходимого сервиса. А современные лобби с витражным остеклением и дизайнерской отделкой порадуют жителей дневным светом и воздухом. Менее чем за 1 минуту пешком можно добраться до таких объектов, как: Ледовый дворец, Спортивный комплекс Косино и Клуб водных видов спорта Acquatica. Рядом с комплексом расположены: детские сады, множество школ, стоматология, центр развития ребенка, магазины, кафе и отделения банков. Район отличается хорошей экологией: озера Черное и Белое, а также Салтыковский лесопарк площадью 1012 га. Рядом с озёрами находится Косинский пляж с широкой чистой прибрежной полосой, песчаным берегом и зоной для игр в волейбол. МФК "СИТИМИКС Новокосино" находится в 15 минутах пешком от м. Новокосино, время поездки до центра Москвы займёт всего 30 минут. Дом сдан. Выдаём ключи. Застройщиком квартала выступает компания APSIS GLOBE, основанная в 2008 году. В качестве девелопера компания успешно завершила ряд инфраструктурных, коммерческих объектов на территории Московской области, Москвы, Санкт-Петербурга. В портфолио застройщика школа, детский сад, жилые и многофункциональные комплексы, комплексная застройка микрорайонов.















































































