Первичная продажа
Онлайн-бронирование
дом сдан
Щербинка
9 минут на транспорте
11 959 749 ₽
335 948 ₽/м²
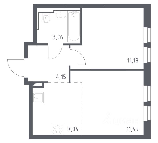
Строим кварталы для жизни с заботой о будущем. Предлагается 1-комнатная квартира комфорт-класса площадью 35.6 кв.м в корпусе 17 на 5-м этаже, в жилом комплексе "Остафьево".
Застройщик сдает квартиры с отделкой в нескольких вариантах: предчистовая, готовая, улучшенная или вариант без нее. Последний подойдет тем, кто хочет создать свой уникальный интерьер и ничем себя не ограничивать.
А если не хочется тратить время на ремонт, можно выбрать опцию - с отделкой. Перед тем как отдать ключи, застройщик установит натяжные потолки, поклеит обои под покраску, положит ламинат светлых тонов, а в санузлах - керамическую плитку и керамогранит.
Приобрести квартиру возможно по специальным акциям от застройщика, с текущими условиями акций можно ознакомиться в блоке "Акций".
Цена динамическая и может отличаться, уточняйте актуальность у застройщика.
"Остафьево" - масштабный жилой комплекс в Новой Москве, рядом с одноименным музеем-усадьбой и городским парком "Барыши". До станций МЦД "Щербинка" и "Остафьево" можно добраться на автомобиле за 57 минут.
Часть домов уже сдана, на территории открыты две школы и три детских сада, а в будущем будет построена поликлиника, ТЦ, еще одна школа и три детских сада.
Все необходимое рядом: на первых этажах домов работают магазины, аптеки и кафе.
Дворы - приватные мини-парки без машин и посторонних. Кроме игровых площадок, для детей обустроили тематический плейхаб "Маяк". В будущем появятся плейхаб "Алиса в стране чудес", арт-объект "Тропа зеркал", а также большой ландшафтный парк.
В квартале - монолитные дома комфортной высоты, от 10 этажей. Светлые фасады украшают кирпичные вставки в теплых природных оттенках.








































































