Первичная продажа
С отделкой
сдача ГК: 3 кв. 2026 года
Щербинка
10 минут пешком
15 502 760 ₽
425 900 ₽/м²
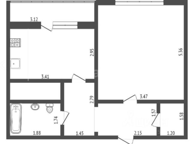
Продаётся 1-комн. квартира площадью 36,4 кв.м на 8 этаже 17 этажного дома (Корпус 2.2, Секция 2) проекта ПИК Юнино. Светлый просторный подъезд на уровне земли, функциональная планировка, большие окна, с отделкой.
"Юнино" возводится в Новой Москве, в девяти километрах от МКАД по Варшавскому шоссе. В 10 минутах ходьбы находится станция МЦД-2 "Щербинка".
Проект состоит из трёх 17-этажных корпусов с просторными лобби с кондиционерами, а также дворами-парками с Вайфай. На первых этажах откроются магазины, кафе, салоны красоты и полезные сервисы для комфортной жизни.
Рядом находятся школы и детские сады, супермаркеты и ТЦ "Бутово Молл". Для прогулок отлично подойдут благоустроенный парк "Барыши", музей-усадьба "Остафьево" и Новокурьяновский лесопарк. Артикуль 958133 (ООО "СЗ"Териберский Берег")



















































































