Код объекта: 2149276.
Внесен аванс!
Продаётся квартира в ЖК "Саларьево парк" на территории новой Москвы с кладовкой!
Описание квартиры:
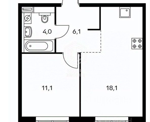
-Продаётся прекрасная комфортабельная евро-трёшка площадью 75,4 м2 в обжитом ЖК.
-Грамотная планировка включает в себя светлые комнаты.
-Просторная кухня-гостиная 12,3 м2 большие комнаты 28,9 и 18,4 м2, 2 санузла.
-Выполнен дизайнерский ремонт.
-Мебель и техника, которая на фотографиях входит в стоимость. Квартира не требует вложений и полностью готова к заселению..
-Дополнительным преимуществом этой квартиры является наличие в собственности кладовки площадью 4 м2 на (-1) этаже, которая входит в стоимость квартиры.
Дом и двор:
-Многоквартирный дом с переменной этажностью: 15-25 плюс 1 подземный,
-Дом оборудован пассажирским и грузовым лифтами.
-Дружелюбные соседи.
-Закрытый двор с внутренней детской площадкой и местами для релакса.
-Подземный паркинг, всегда есть места для аренды и покупки. Свободные места для парковки автомобиля вокруг дома.
Транспортная доступность:
-Пешком 15 мин. до метро Саларьево, 23 мин. до метро Филатов луг.
-Общественным транспортом 5-7 мин. до метро Румянцево и Прокшино, 5-6 мин. до метро Солнцево, Боровское шоссе и Новопеределкино.
-От метро Саларьево автобус 911 до аэропорта Внуково.
-Быстрый выезд на Киевское шоссе
-В непосредственной близости автовокзал Саларьево.
Инфраструктура рядом:
-В пешей доступности Саларьевский парк с речкой Сетунь, освещёнными пешеходными дорожками и детскими игровыми площадками.
-Рядом Картмазовские пруды для отдыха на природе.
-Поблизости ТЦ Саларис с множеством магазинов, кинотеатром, кафе, фитнес центром, гипер маркетом Глобус.
-Также рядом кофейня, Вкус Вилл, пицерии и суши бары, м-н Пятёрочка, буханка, 1000 Мелочей, гипермаркет Лемана Про, Мой мебельный, пункты выдачи Яндекс Маркет.
-Рядом школа 2094 с множеством своих корпусов вокруг, детский центр развития, детские сады.
-Салоны красоты, стоматология, Планета здоровья, фитнес студия Александры Гольцовой, Студия балета Ирины Ждановой, Студия Инны Морозовой.
-Автосалоны BMW, Nissan, Haval и другие.
-В доступности храм СВ. Ксении Петербургской.
Условия продажи:
-Альтернативная продажа, альтернатива подобрана. 5 собственников, без обременений, быстрый выход на сделку.
-Полная стоимость в ДКП, в собственности более 5 лет
Преимущества МИЭЛЬ:
-Предоставляем гарантии юридической чистоты для покупателя, правовой сертификат.
-Помощь в получении одобрения ипотеки, комфортные и безопасные условия сделки.
-Преимущества от партнёров.