


557 460 ₽/м²
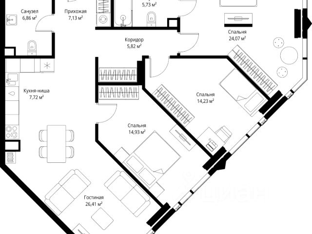
10 минут от Москва-Сити В продаже квартира площадью 112.36 м² без отделки на 31 этаже 46 этажного дома. Квартира расположена в корпусе Leo. JOIS это премиальный жилой комплекс от девелопера MR в районе Хорошёво-Мнёвники. Он включает несколько эффектных небоскрёбов высотой 47-56 этажей, эксклюзивные форматы квартир с панорамным остеклением, подземный двухуровневый паркинг на 239 м/м, собственную приватную инфраструктуру, закрытый ландшафтный парк 2,3 Га с функциональным зонированием и охраняемой территорией. Над проектом работали лучшие команды международных агентств с многолетним опытом: Genpro, S&P, iLight International и другие. Расположение Пешком: - 5 мин. ст. МЦК "Хорошёво"; - 15 мин. ст. м. "Народное ополчение"; - 10 мин. ст. метро "Звенигородская" с 2027 года; - 20 мин. причал "Карамышевский". На автомобиле: - 3 мин. до Звенигородского шоссе; - 5 мин. до ТТК: - 8 мин. до Серебряного бора и Строгинского затона - 10 мин. до ММДЦ "Москва-Сити"; - 40 мин. до аэропорта "Шереметьево"; Благоустройство - собственный ландшафтный парк 2,3 Га; - парк скульптур от Cosmoscow; - консьерж-сервис 24/7; - сервисный лифт и вход; - игровые и спортивные площадки; - коворкинг с библиотекой; - лаунж-зона с камином; - игровые комнаты для детей и клуб для подростков с оборудованием для видеоигр; - спортивная студия для индивидуальных тренировок; - гостиная с мини-кухней; - зоны для выгула собак; - подогрев пешеходных дорожек в зимний период; - автополив зелёных насаждений; - премиальные рестораны, кафе, химчистки, аптеки и супермаркеты. Окружение - 4 парка: Покровское-Стрешнево, Филёвский парк, Серебряный бор и Берёзовая роща; - 15 общеобразовательных заведений, в том числе две школы из самых лучших в Москве: государственная школа "Интеграл" и частная "Хорошкола"; - спортивное сооружение "ВЭБ Арена", домашний стадион ФК ЦСКА; - крупнейший в Европе торгово-развлекательный центр "Авиапарк".































































































































