


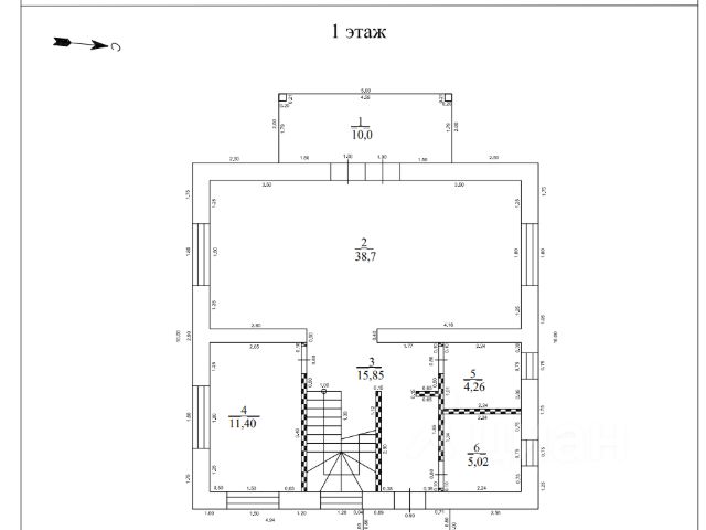
ЭКСКЛЮЗИВ - AIM Realty! Предлагается к продаже дом под ключ в охраняемом коттеджном поселке "Красная Пахра". Площадь основного дома — 972 м², на участке также расположен дом охраны 202 м². Площадь участка — 71 сотка. Количество спален — 6, санузлов — 5. Дом полностью готов к проживанию, с продуманной многоуровневой планировкой и функциональными зонами для отдыха, спорта и приёма гостей. Планировка: Цоколь: котельная, кладовая, шубный холодильник, сезонная гардеробная, кладовая, спортзал; 1 этаж: гардеробная, кухня-столовая, гостиная, зимний сад, спальня, гостевой санузел, сауна, душевая, комната отдыха, гараж; 2 этаж: библиотека, мастер-спальня с собственным санузлом; 3 этаж: гостиная, две детские спальни с общей игровой, санузел, спальня с выходом на балкон и собственным санузлом; Мансарда: бильярдная, бар, зона отдыха, спальня, санузел. О поселке: Коттеджный поселок "Красная Пахра" расположен на Калужском шоссе, в 24 км от МКАД. Поселок полностью обжитой, с огороженной и охраняемой территорией, автоматическими воротами и системой контроля доступа. К домам подключены все центральные коммуникации: газ, электричество, водоснабжение, канализация, выделенная линия интернета (ТТК DSL). На территории поселка предусмотрена общественная зона отдыха с беседкой и мангалом, гостевая парковка. Инфраструктура: В пешей доступности — школа, детский сад, спортивно-культурный центр, магазины, каток, остановка общественного транспорта до метро Тёплый Стан. Рядом — река Пахра, спортивный парк, зоны для прогулок и рыбалки. В 5 минутах езды — город Троицк. Отличное предложение для комфортной семейной жизни в зелёной локации с развитой инфраструктурой и удобной транспортной доступностью. AIM Realty - участник ассоциации AREA! an-msk-zag-10283600 Продается дом в поселении Михайлово-Ярцевское в Москве.


































































































