С мебелью
Войковская
19 минут пешком
14 000 000 ₽
311 111 ₽/м²
ДОМ
• Адрес: Москва, ул. Клары Цеткин, 18 к. 3 (район Коптево / Войковский, САО).
• Класс жилья: комфорткласс.
• Год постройки: 2022 (введён в эксплуатацию).
• Тип здания: монолитнокаркасный, с панельными ограждающими конструкциями.
• Этажность: 7 этажей.
• Количество апартаментов: 246.
• Лифты: 1 пассажирский + 1 грузовой.
• Перекрытия: железобетонные.
• Инженерные системы: центральное ГВС и отопление.
• Паркинг: наземный, за шлагбаумом (во дворе).
• Территория: закрытая, с озеленением.
• Входные группы: благоустроенные, с пандусами и помещением для консьержа.
• Общая площадь дома: 7 746 м².
• Управляющая компания: уточняется.
• Особенности ЖК:
• лаунджзона на крыше (искусственный газон, солярий, зона отдыха);
• площадки для выгула собак;
• система видеонаблюдения.
КВАРТИРА
• Статус: апартаменты (нежилое помещение).
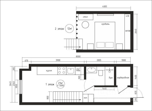
• Тип помещения: двухуровневая угловая студия.
• Общая площадь: 41,5 м².
• Жилая площадь: 41,5 м² (единое пространство с зонированием).
• Этаж: 4 из 7 (угловое расположение — с одной стороны нет соседей).
• Высота потолков: 4,5 м (на нижнем уровне).
• Окна: выходят во двор (много света).
• Санузел: совмещённый, с душевой кабиной и качественной сантехникой.
• Гардеробная: есть.
• Ремонт: современный дизайнерский (серочёрные тона, качественные материалы).
• Мебель: кухня, системы хранения одежды, спальные места.
• Техника:
• кондиционер;
• холодильник;
• стиральная машина;
• посудомоечная машина;
• водонагреватель;
• варочная панель;
• духовой шкаф.
• Дополнительные системы:
• Умный дом (управление через Алису: свет, техника, климат);
• климатконтроль;
• качественная шумоизоляция.
• Планировка:
• нижний уровень — гостиная/кухня/рабочая зона;
• верхний уровень (антресоль) — спальная зона.
ИНФРАСТРУКТУРА
• Транспортная доступность:
• МЦД Красный Балтиец — 8 мин пешком;
• метро Войковская — 15 мин пешком;
• метро Балтийская — 20 мин пешком;
• выезд на Ленинградское шоссе — 5 мин на авто;
• выезд на Волоколамское шоссе — 7 мин на авто.
• Социальные объекты (пешком):
• поликлиника — 10 мин ходьбы;
• тренажёрный зал — 5 мин ходьбы.
• Магазины и сервисы:
• сетевые супермаркеты — 510 мин ходьбы;
• аптеки — 7 мин ходьбы;
• отделения банков — 1015 мин пешком;
• пункты выдачи Ozon/Wildberries — в доме и рядом.
ДОКУМЕНТЫ
• Вид сделки: свободная продажа.
• Ограничения по объекту: имеется непогашенный ипотечный кредит в Сбербанке (остаток — 5 млн рублей). Все платежи вносятся своевременно, просрочек не было.
• Кадастровый учёт: помещения поставлены на учёт.
• Собственник: 1 лицо.
• Основание права собственности: договор куплипродажи (ДКП) 2022 года.
• Сумма в ДКП: указывается полная стоимость.
• Кадастровая стоимость: 1,7 млн рублей.
• Налог на имущество: не более 36 тыс. рублей в год.
• Дополнительная информация: в Госдуме рассматривается законопроект о признании апартаментов жилой недвижимостью. В случае принятия закон может повысить рыночную стоимость объекта.
Звоните — организуем показ и ответим на все вопросы!













































































