Первичная продажа



8 акций
Онлайн-бронирование
сдача ГК: 2 кв. 2027 года
Соколиная гора
4 минуты пешком
31 798 200 ₽
469 000 ₽/м²
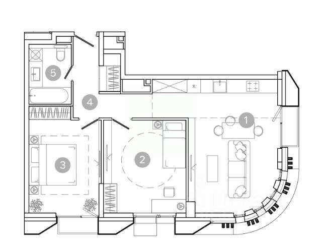
Продается 3-к квартира площадью 67.8 кв.м. на 12-м этаже
УНО Соколиная Гора — новое поколение жилой недвижимости в историческом районе Москвы в непосредственной близости от Измайловского парка. Динамичная и современная архитектура формирует доминанту района и становится центром визуального притяжения, гармонично cочетая баланс между урбанистической энергией современной Москвы и спокойствием природы. Благодаря уникальной локации вся Москва будет для вас как на ладони удобные транспортные развязки, выезды на ключевые магистрали, метро и МЦК в шаговой доступности.
















































































