3 364 044 ₽/м²
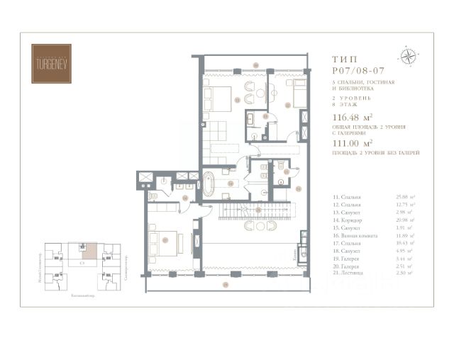
Одна из двух самых просторных квартир в доме: Пентхаус с 3 спальнями, 292 м2, 7 этаж Клубного дома TURGENEV. Особенности: Большая площадь, 2 открытые галереи, премиальная финишная отделка, 2 дровяных камина (в гостиной и в одной из спален), 2 входа в квартиру, кухня для персонала. Описание: Главный вход в квартиру ведет в прихожую-холл (14,62 м2), второй - в зону столовой (40,84 м2) и дополнительной кухни для персонала (5,38 м2). Панорамные окна просторной столовой, кабинета (19,54 м2) и гостиной с дровяным камином (66,08 м2) выходят на юго-запад, на тихий переулок Малый Головин. Панорамные окна двух спален (23,49 м2 и 31,73 м2) выходят на запад, из которых видна зона из зеленых насаждений. Вдоль столовой, кабинета, гостиной и двух спален протянулась открытая галерея (13,78 м2). На галерее можно организовать зону для отдыха (столик, кресла, шезлонги), где приятно проводить время с чашечкой кофе и любоваться Москвой. Панорамные окна третьей спальни (33,40 м2) с собственной открытой галереей (2,07 м2) выходят на восточную сторону - во внутренний двор-сад с фонтаном и водными каналами. В этой спальне установлен второй дровяной камин. В каждой комнате предусмотрены места для хранения, во второй спальне также есть гардеробная (5,56 м2). Помимо ванной комнаты (8,73 м2), в квартире расположены два санузла с душем, гостевой санузел и постирочная. Дом сдан и частично заселен. Клубный дом TURGENEV (Тургенев) расположен в ЦАО Москвы в районе Чистых прудов, в тихом месте на Костянском переулке между Садовым и Бульварным кольцом, в 3 км от Красной площади Кремля. Рядом большое количество достопримечательностей, музеев, театров, ресторанов, баров, торговых центров. Архитектурный проект дома разработан при участии международной команды архитекторов: Squire&Partners из Британии и Building Design Architectuur из Нидерландов. Фасад - натуральный камень: первые 6 этажей - португальский известняк, 7 и 8 этажи - гранит Dark Brown. Клубный дом TURGENEV имеет П-образную форму и состоит из 8 этажей, 5 секций и 118 квартир, включая двухуровневые пентхаусы с террасами и каминами. Все квартиры в Клубном доме TURGENEV реализуются с чистовой премиальной дизайнерской отделкой в современном стиле контемпорари от нидерландского бюро Wolterinck. В отделке квартир в TURGENEV используются экологичные, природные материалы премиального качества: пол из натуральной австрийской паркетной доски Austriawood, стены - итальянская краска PRATTA Exclusive, в санузлах - английская штукатурка Tadelakt и натуральный мрамор: итальянский Wooden White и греческий Pirgon. В каждой квартире установлены кухни от итальянского бренда Cesar со встроенной бытовой техникой премиальной линейки Smeg. Кухонный остров, столешница и фартук кухни выполнены из эксклюзивного итальянского мрамора Arabescato Grigio Orobico, одним из лучших видов мрамора на итальянском рынке натуральных отделочных камней. Внутренний двор с садом Клубного дома TURGENEV - оазис с зелеными газонами, мощеными тропинками, фонтана Продается 3-комнатная квартира в переулке Костянский в Москве.































































































