Только на Циан
Проверено в Росреестре
97 000 000 ₽
В продаже 2-этажный коттедж площадью 442 м2 на участке 15 соток в коттеджном поселке бизнес-класса Дубровка. Поселок расположен на территории Новой Москвы, в 7 км от МКАД по Калужскому шоссе.
Городской коттедж в окружении развитой инфраструктуры, с отличной транспортной доступностью. Выполнен по авторскому проекту в английском загородном стиле. Идеальный вариант для семьи.
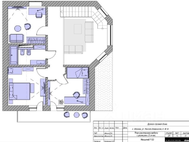
Площадь основного дома - 442 м2 (+ 58 м2 терраса, 12 м2 хозблок для уличной техники)
Площадь участка - 15,26 соток
Количество уровней 2 этажа
Комнат 16
Спален 6
С/у 4
Гараж на 2 машиноместа
Банный блок (дровяная баня) с комнатой отдыха и выходом на террасу
Кинотеатр с барной зоной
Спортзал
Камин дровяной
Год постройки 2007
1 этаж: просторная кухня-гостиная 60 м2 с камином и выходом на террасу, 2 комнаты кабинет и спальня (или второй кабинет), с/у, постирочная/бойлерная, гараж, мастерская. Баня с комнатой отдыха, кухней, с/у и раздевалкой, выход на террасу под крышей и уличной кухней.
2 этаж: Мастер блок 52 м2 (спальня, гардеробная комната, ванная комната, балкон), три спальни, с/у, спортзал, кинотеатр, кладовая и комната свободного назначения 32 м2, может быть гостевой комнатой.
Конструктив: фундамент и перекрытия - монолитные железобетонные, стены газобетон, фасад декоративный кирпич, штукатурка. Окна: стеклопакеты ПВХ (Rehau, 2-х камерные с раскладкой белого цвета). Кровля: rибкая черепица Tegola.
Коммуникации: газ - магистральный, э/э - 15 кВт, водопровод и канализация - централизованные.
Инженерное обеспечение: котел De Dietrich, бойлер De Dietrich 300 л. Центральное кондиционирование и вентиляция. Охранная, пожарная сигнализация Гольфстрим. Дистанционное управление открыванием въезда, входа, гаража.
Тип участка: ровный ухоженный участок правильной формы с газоном, множественными уже взрослыми деревьями, плодовые деревья и кустарники. Выполнен дренаж по участку и вокруг дома. Автополив Gardena.
Коттеджный поселок бизнес-класса Дубровка полностью сформированный обжитой мультиформатный поселок, охраняемый, с пропускной системой, патрулированием и видеонаблюдением, окружен лесным массивом.
В поселке: собственный парк с прудами и мини-зоопарком, зоны отдыха, детские и спортивные площадки, фонарное освещение, широкие дороги с тротуарами.
КП Дубровка имеет обширную территорию и инфраструктуру: фитнес-центр, СПА, бассейн, супермаркеты Перекрёсток, Пятерочка, Дикси, торговый центр Уютный дом, рестораны и домашние кафе, бизнес-центр, нотариус, детский сад. Скоростные дороги, шоссе соединяющее Калужское и Киевское шоссе, в пешей доступности (1 км) станция метро Ольховая, автобусы и маршрутки до метро Тёплый Стан.
















































































