


713 000 ₽/м²
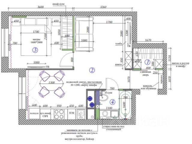
В продаже 2-к квартира от застройщика. Общая площадь 75.30, жилая 31.20, кухня 20.7. Квартира расположена на 7 этаже жилого квартала "Событие-6", корпус 1, Секция 2. Квартира с чистовой отделкой. Срок сдачи: 4 кв. 2029 года. СОБЫТИЕ.6 — финальный дом парк-квартала СОБЫТИЕ на Мосфильмовской. Переезжайте в уже сформированный квартал с готовой инфраструктурой и парком! Премиальный жилой комплекс в престижном районе Москвы предлагает стильную архитектуру, продуманное благоустройство и великолепно разнообразие общественных пространств. Свой парк прямо возле дома! Архитектура Архитектура СОБЫТИЯ.6 выполнена в ультрасовременном стиле московским бюро Atrium на основе дизайн-кода британских архитекторов LDA Design и UHA London. Дом отличает оригинальная геометрия фасадов, большое остекление и высокие лобби (до 6,2 м) с авторской мебелью и светильниками. Расположение Мосфильмовская улица (Раменки) — один из престижных районов Москвы. Близость к историческому и деловому центру, природным зонам Запада столицы. Транспортная доступность: • 10 мин до Москва-Сити и ТТК; • 15 мин до Садового кольца; • 25 мин до аэропорта Внуково; • 7-10 мин до станций метро "Аминьевская" и "Мичуринский проспект". Инфраструктура: • парк "Событие" (12 га, финалист конкурса Правительства Москвы) с беговыми (1,5 км) и велодорожками (2,7 км), экотропой (1,6 км), площадками, лекторием; • школа, детский сад, магазины, салоны красоты, рестораны (к моменту заселения); • мультидвор с игровыми и спортивными площадками, мини-бульваром; • общественная терраса на 10-м этаже (коворкинг, лаунж); • Закрытые общественные пространства: детская комната, спортивный зал, коворкинг, лаунж-зоны. Паркинг 256 мест для жителей (48 — для электромобилей), 24 гостевых (5 — для электромобилей), мойки колес, кладовые, зоны для велосипедов. Окружение Парки и заповедники (Воробьёвы горы, Матвеевский лес и др.), МГУ, театр им. Н. И. Сац, стадион "Лужники". Безопасность Видеонаблюдение, контроль доступа, видеодомофоны, консьерж-сервис 24/7, системы пожарной безопасности и мультисервисная оптическая сеть.








































































































