


578 231 ₽/м²
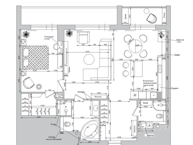
Премиальное пространство для семьи, которая выбирает уровень. Если вам важны статус, приватность и сильное окружение для детей, — вы его нашли. Евротрёхкомнатная квартира в ЖК VERSIS, бизнес-класс - закрытый клубный формат в одной из самых удобных локаций Москвы. Квартира без компромиссов: * Семейная планировка: кухня-гостиная, спальня, детская/кабинет, балкон * 2 санузла, гардеробная и постирочная * Дизайнерский ремонт, натуральные материалы, тёплая премиальная палитра * Полная замена стеклопакетов и утепление фасада — тишина и комфорт круглый год Дом и приватность: * Закрытая территория, охрана и видеонаблюдение 24/7 * Презентабельные входные группы, авторский двор * Подземный паркинг на 3 уровня Локация ЖК VERSIS — одна из самых интеллектуально насыщенных в Москве. Здесь традиционно живут семьи, для которых образование — приоритет. Школы и лицеи рядом: -ГБОУ Школа 1514 — одна из сильнейших школ ЮЗАО -ГБОУ Школа 45 им. Л. И. Мильграма — физико-математический профиль -Школы с углублённым изучением языков и математики в пешей и короткой транспортной доступности -Частные и международные школы, кружки и секции рядом с домом Вузы: -МГУ им. М. В. Ломоносова -РУДН -РНИМУ им. Н. И. Пирогова Локация, где образование — норма, а не исключение. Прогулки и отдых: -Воронцовский парк — пруды, аллеи, семейные прогулки -Парк 70-летия Победы — пространство для спорта и детей -Зелёные скверы Черёмушек — тихие маршруты у дома -кафе и рестораны у дома: Кофемания, Сыроварня, Новочеремушкинский рынок Локация для жизни: * Станция метро "Профсоюзная" - 11 минут, "Вавиловская" - 14 минут пешком * 10 минут на автомобиле до ТТК 2 взрослых собственника. Без обременений. В собственности более 5 лет. Полная стоимость в договоре, ипотека возможна. Эта квартира — выбор семей, которые ценят качество среды и будущее детей. Запишитесь на просмотр — такие предложения появляются редко.










































































