500 864 ₽/м²
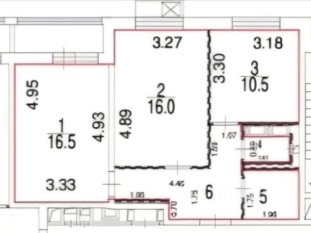
Продаётся светлая и современная квартира в новом жилом комплексе! Общая площадь — 57,9 кв. м, жилая — 32,4 кв. м. Квартира абсолютно новая — в ней никто не жил, что даёт вам возможность стать первым владельцем и обустроить пространство полностью под себя. Продуманная планировка позволяет максимально эффективно использовать каждый метр. Просторная жилая зона наполнена естественным светом благодаря большим окнам. Кухня отлично подойдёт как для уютных семейных ужинов, так и для приёма гостей. Дом новый, с современными инженерными решениями, чистыми подъездами и благоустроенной территорией. Есть подземный паркинг, что обеспечивает комфорт и безопасность для вашего автомобиля в любое время года. Развитый, современный и тихий район: рядом магазины, школы, детские сады, удобная транспортная доступность. Рядом Воронцовский парк. До метро Черемушки 1 минута ходьбы. Отличный вариант как для собственного проживания, так и для инвестиций. Это идеальный выбор для тех, кто ценит комфорт, качество и удобное расположение своего жилья. Предлагается прямая продажа без каких-либо юридических ограничений или обязательств, что гарантирует прозрачность сделки и отсутствие рисков. Несколько взрослых собственников. Без обременений. В услугах риелторов и помощи в продаже не нуждаемся!!!!!!! Агенствам и риэлторам обращаться только со своими клиентами. По остальным вопросам сотрудничества - НАСТОЯТЕЛЬНАЯ ПРОСЬБА - НЕ БЕСПОКОИТЬ!!!!!










































































