От года, комм. платежи включены (без счётчиков), без комиссии, без залога
Паркинг в теплом и сухом подземном гараже

От года, комм. платежи включены (без счётчиков), без комиссии, без залога
Паркинг в теплом и сухом подземном гараже



От года, комм. платежи включены (без счётчиков), без комиссии, без залога
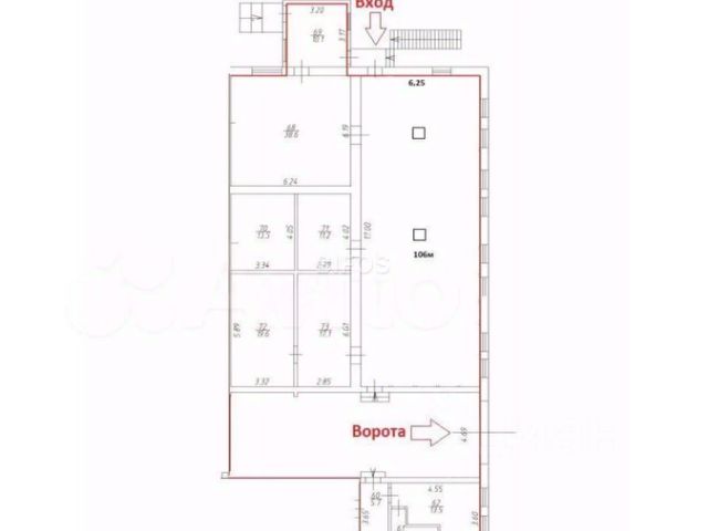
Лот 986729 Предложение от Собственника! Аренда помещения 520м2 в цоколе перспективной локации здания в районе м.Калитники (14 мин пешком), м.Нижегородская (7 мин пешком). Рядом КРТ "Серп и молот". Хорошая транспортная доступность (до ТТК 300м). 3 отдельных входа. Потолок - 4м. от 50кВт (возможно увеличение до 1 мегаватта). Все центральные коммуникации. Горячая вода от своего котла. Система вентиляции. Возможно подключить газ. Земля 1700м2 в аренде на 49 лет. Есть место под парковку. Возможен подъемник с 1го этажа. Возможен подъезд фуры. Возможный профиль: Общепит, Кафе, Ресторан, Выпечка, Пекарня, Шаурма, тандыр, Продукты, Алкомаркет, Аптека, Оптика, Услуги, Сервис, Ремонт, Салон красоты, Парикмахерская, Барбер шоп, Банк, Ломбард, Касса, Ателье, Химчистка, Фото, Туры, Страхование, Нотариус, Детский Сад, Центр, Детский Клуб, Обучение, Школа, Курсы, Творчество, Тренинги, МедЦентр, Клиника, Анализы, Стоматология, Косметология, Салон эпиляции, Массаж, Спа, ТНП, Цветы, Одежда, Обувь, Секонд хенд, Хозтовары, Для Дома, Для Ремонта, Детские, Зоотовары, Стройматериалы, Интернет магазин, Пункт самовывоза, Выдачи, Доставка, ДаркКитчен, Товары, Шоурум, Бутик, Ювелирный, Интерьер, Посуда, Игрушки, Канцтовары, Подарки, Сувениры, Косметика, Бижутерия, Аксессуары, Парфюмерия, БытХимия, Текстиль, Ткани, Белье, Хостел, Гостиница, Отель, Фитнес, Танцы, Единоборства, Спортзал, Кибер зона, Букмекеры, Ставки, Техника, Электроника, Мебель, ВетКлиника, Салон Связи, Бар, Кальянная, Клуб, Караоке, Бильярдная, Боулинг, Антикафе, Квест В цену не включено: затраты на электричество, коммунальные расходы, уборка. Обеспечительный платеж 1 месяц. Чтобы получить ПОДРОБНУЮ ПРЕЗЕНТАЦИЮ С ПЛАНИРОВКОЙ И ФОТОГРАФИЯМИ, звоните или отправьте свой email и номер телефона в сообщении на портале. Высылаем в течение 15 минут по запросу! Конт. лицо: Алексей Владимирович, доб. 217, ЛОТ 986729



От года, комм. платежи включены (без счётчиков), без комиссии, залог 900 000 ₽
ПРЯМАЯ аренда 341 кв.м. - от Собственника! БЕЗ комиссии. Первая линия домов по улице Смольная! В 10 минутах от метро "Водный стадион". Большой автомобильный и пешеходный трафик! Предоставляются арендные каникулы! УСН! - Панорамные остекления. - Электричество 20 кВт (с возможностью увеличения). - Мокрые точки, с/у. - Вентиляция приточно-вытяжная. - Кондиционирование. - Высота потолков 4 м. - Пожарная сигнализация. - Охрана. Видеонаблюдение. - Два отдельных входа. - Лифт. - Доступ 24/7. По необходимости в пользование предоставляется ТЕРАССА 113 кв.м., БЕСПЛАТНО. Прежний арендатор детская школа. Видео сделано не всех залов, т.к. там проводились индивидуальные занятия, на показе откроем всё! Звоните всё детально расскажу, оперативно покажу!



От года, комм. платежи включены (без счётчиков), без комиссии, залог 1 200 000 ₽
Эксклюзивное предложение от собственника! Помещение свободного назначения, общей площадью: 151,9 кв.м (есть возможность уменьшить до 113 кв.м), расположенное по адресу: Кутузовский проспект, д. 26 с витринными окнами, свободной планировкой в центре Москвы. Готовы рассмотреть любой законный вид деятельности, интенсивный трафик, эл. мощность 50 кВт. Возможность размещения рекламы на фасаде. Условия аренды: Договор аренды: 11 мес. или с пролонгацией до 5 раз. АП 600 000 тр. УСН в месяц. Депозит 2 мес. (обсуждаемо). Индексация: 5-7 % (обсуждаемо). Коммунальные платежи: по факту потребления. Каникулы: обсуждаемы. Под распродажи, вендинговые аппараты и краткосрочную аренду не рассматриваем. Агентские вознаграждения не платим!



От года, комм. платежи включены (без счётчиков), без комиссии, без залога
Сдается кабинет в цокольном этаже жилого дома на длительный срок. Для арендатора без клиентского потока. Идеальный вариант для регистрации ООО или для размещения делового представительства компании, проведения редких встреч, переговоров. Предоставляем Юр адрес в рамках 22 ИФНС. Можем подключить удобное почтовое обслуживание по привлекательной цене на 3/6/12 мес. Работаем без комиссии.



От года, комм. платежи включены (без счётчиков), без комиссии, залог 25 000 ₽
Офис, готовый для эксплуатации, имеется мебель.



От года, комм. платежи включены (без счётчиков), без комиссии, без залога
БЕЗ КОМИССИИ. Аренда от собственника. Аренда помещений на территории бывшего завода Кристалл., класс В. Помещение подходит для размещения офиса, шоурум, выставки, лектория и проч. Помещение 1402 кв.м находится в цоколе. Имеется грузовой подъемник. Его можно арендовать частями, 300-450 кв.м. Дополнительная информация: - Режим работы 24/7; - Локальное кондиционирование; - Системы пожарной и охранной сигнализации; - Круглосуточная охрана, видеонаблюдение; - Открытый охраняемый паркинг. Благоустроенная территория. Рядом парк им. 1 мая, набережная Яузы Договор заключается напрямую с собственником! Без скрытых платежей и комиссий! В цену включены НДС и эксплуатационные расходы. Коммунальные расходы оплачиваются дополнительно. Предоставляется юридический адрес. ИФНС 22. Звоните, оперативный показ.



От года, комм. платежи включены (без счётчиков), без комиссии, без залога
В аренду предлагается теплый склад класса B. г Москва, ул Скотопрогонная, д 35 стр 3, -1 этаж (Юго-Восток). Общая площадь 2396.2 м². Есть пандус Полы - асфальт. Высота потолков - 4 м. Отправим презентацию, организуем просмотр в удобное для вас время! ID: w14103



От года, комм. платежи включены (без счётчиков), без комиссии, без залога
Собственник в бизнес-центре сдает офис 28,5 м2 (1 комната). Метро Таганская, 8 минут шагом. Этаж 3-й. Лифта нет. Потолок 3 м. Кондиционер. Круглосуточная охрана. Доступ свободный. Режим работы 8.00-22.00 ежедневно. Интернет КОННЕКТИКА, КВАРЦ ТЕЛЕКОМ. Парковка городская. Юридический адрес 9-я ИФНС. Прямая аренда. Собственник на УСН. Цена с НДС 5% 63 711 р/мес, включая коммунальные платежи, электричество, уборку.



От года, комм. платежи включены (без счётчиков), без комиссии, без залога
Бизнес-центр класса В+ Стримлайн-Плаза. Сдаётся в аренду офисное помещение площадью 4,1кв.м., без окна. Эксплуатационные расходы включены в стоимость аренды. Предоставляется юридический адрес ИФНС 20. Адрес не массовый, в ГАР(ФИАС) внесен. УСН.



От года, комм. платежи включены (без счётчиков), без комиссии, залог 1 ₽
Описание в разработке! 22 мед кабинета



От года, комм. платежи включены (без счётчиков), без комиссии, без залога
Сдается в аренду офисное помещение на 3 этаже в бизнес-центре В класса, который находится по адресу: ул. Кондратюка, д. 3. Без комиссии для Арендатора! ЛОКАЦИЯ: Пешая доступность от станций метро ВДНХ, Алексеевская, Останкино. Удобный выезд на улицу Академика Королёва, проспект Мира, СВХ. ПОМЕЩЕНИЕ: В помещении выполнена офисная отделка, кабинетная планировка. Кондиционирование - сплит-система, приточно-вытяжная система вентиляции. В наличии наземная парковка. Арендные каникулы и ставка подлежат обсуждению. Звоните, отвечаем по будням с 09:00 до 18:00, а в другое время передадим Ваш контакт нашему менеджеру!



От года, комм. платежи включены (без счётчиков), без комиссии, без залога
Прямая аренда от собственника Предлагается в аренду офисное помещение 18,4 кв.м, состояние помещения готово к въезду. Высота потолков 2,8 м, 6-й этаж, пассажирский лифт, общий вход, пропускной режим Административное здание завода "Энергоремонт", проезд Энтузиастов, д.5, первая линия домов. Шаговая доступность от метро Авиамоторная 8-10 минут пешком, D3 Cортировочная 5 минут пешком. Парковка бесплатная перед зданием, есть платная парковка на территории предприятия. В арендную ставку включены НДС и коммунальные платежи, отдельно оплачивается только электроэнергия. Интернет- провайдер Сити-телеком. Территория БП находится под круглосуточной охраной и видеонаблюдением. Лот 000006843



От года, комм. платежи включены (без счётчиков), без комиссии, без залога
Аренда теплого склада-производства 291кв. Ленинградский просп., 80к17, 7 мин от м. Сокол. 1й этаж, ворота нулевая отметка, откидные. Планировка смешанная: заезд, большой зал и несколько комнат. Потолки 3м, подвод воды и канализации. На территории есть платный паркинг на долгое время. Заезд выезд для разгрузки-погрузки бесплатно 30 мин. Доступ 24-7. охрана. Площадь 291кв.м. 365 000руб. в мес. с НДС, отдельно коммунальные. Депозит 2 месяца.



От года, комм. платежи включены (без счётчиков), без комиссии, залог 10 000 ₽
Машиноместо в подземной парковке "Садовые кварталы" находится на -2 этаже прямо напротив лифта. Размеры 2.30х6.1



От года, комм. платежи включены (счётчики включены), без комиссии, без залога
Сдам гараж на длительное или краткосрочное время. Находится в охраняемом ГСК. Полы ровные, при необходимости предоставлю паллеты (если хотите использовать в качестве склада). Крыша не протекает, заезд удобный. Отлично подойдёт под хранение автомобиля или под складское помещение. Никаких дополнительных расходов или отчислений не потребуется. По всем вопросам не стесняйтесь - звоните с 12:00 до 00:00 любого дня. С удовольствием на них отвечу!



От года, комм. платежи включены (без счётчиков), без комиссии, без залога
Складской комплекс, расположенный по адресу: г. Москва, ул. 1-я Фрезерная, дом 2/1, предлагает в аренду складские и офисные помещения. На территории комплекса расположены несколько корпусов от одного до трёх этажей. Обеспечена круглосуточная работа всех наших корпусов, охрана, видеонаблюдение, вежливый персонал. Ваши вещи будут под надёжной защитой! В комплексе имеется доступ ко всем коммунальным службам, электричеству, интернету, городскому телефону. Также на территории размещаются парковки, работает кафе. Большим плюсом складского комплекса является его отличное месторасположение - всего в 10 минутах пешком от МЦК "Андроновка". Мы предлагаем гибкие условия аренды и готовы подобрать помещения под ваши потребности.



От года, комм. платежи включены (без счётчиков), без комиссии, залог 15 000 ₽
Сдается в аренду офисное помещение 14,3 кв.м.. В арендную плату включены коммунальные и эксплуатационные платежи. К стоимости + 5% НДС. Юридический адрес предоставляется по 19 ИФНС. По всем вопросам звоните.



От года, комм. платежи включены (без счётчиков), без комиссии, без залога
Уважаемый Арендатор, предлагаем Вам арендовать помещение свободного назначения 330.0 м² на 1 этаже на выгодных условиях. Планировка - смешанная. Приточно-вытяжная вентиляция. Интернет, телефония. Охрана. Видеонаблюдение. Система контроля доступа. Отдельный вход. Наземная парковка. ЦАО Москвы. В 7 минутах от м. Курская Быстро реагируем на обращения, организуем встречу на объекте в удобное для Вас время, направим план помещения и ответим на все возникшие вопросы! Звоните сейчас и получите лучшие условия на рынке! ID: o52563



От года, комм. платежи включены (без счётчиков), без комиссии, без залога
Сдается отдельный кабинет строго под офисную деятельность. Без клиентской проходимости и посещаемости на 1 одного человек. Интернет в здании. Парковка стихийная. Адрес относится к 9 ИФНС, при необходимости возможно предоставить. По договору оплата: первый месяц и депозит.
| 🔷 Средняя цена аренды: | 15 тыс. ₽ |
| 🔷 Минимальная стоимость: | 15 тыс. ₽ |
| 🔷 Самый дорогой объект: | 15 тыс. ₽ |